autoua
×
Autoua.netФорумВирішення побутових проблем

Хочу сделать прихожую на заказ. Кто из камрадов ?

СуперСтар *
44 года, Киев
Сообщения: 4090
С нами с 10.03.2006

Хочу сделать прихожую на заказ. Кто из камрадов ?
      14 ноября 2016 в 10:21 Гілками Прикріплені файли (0 завантажити)

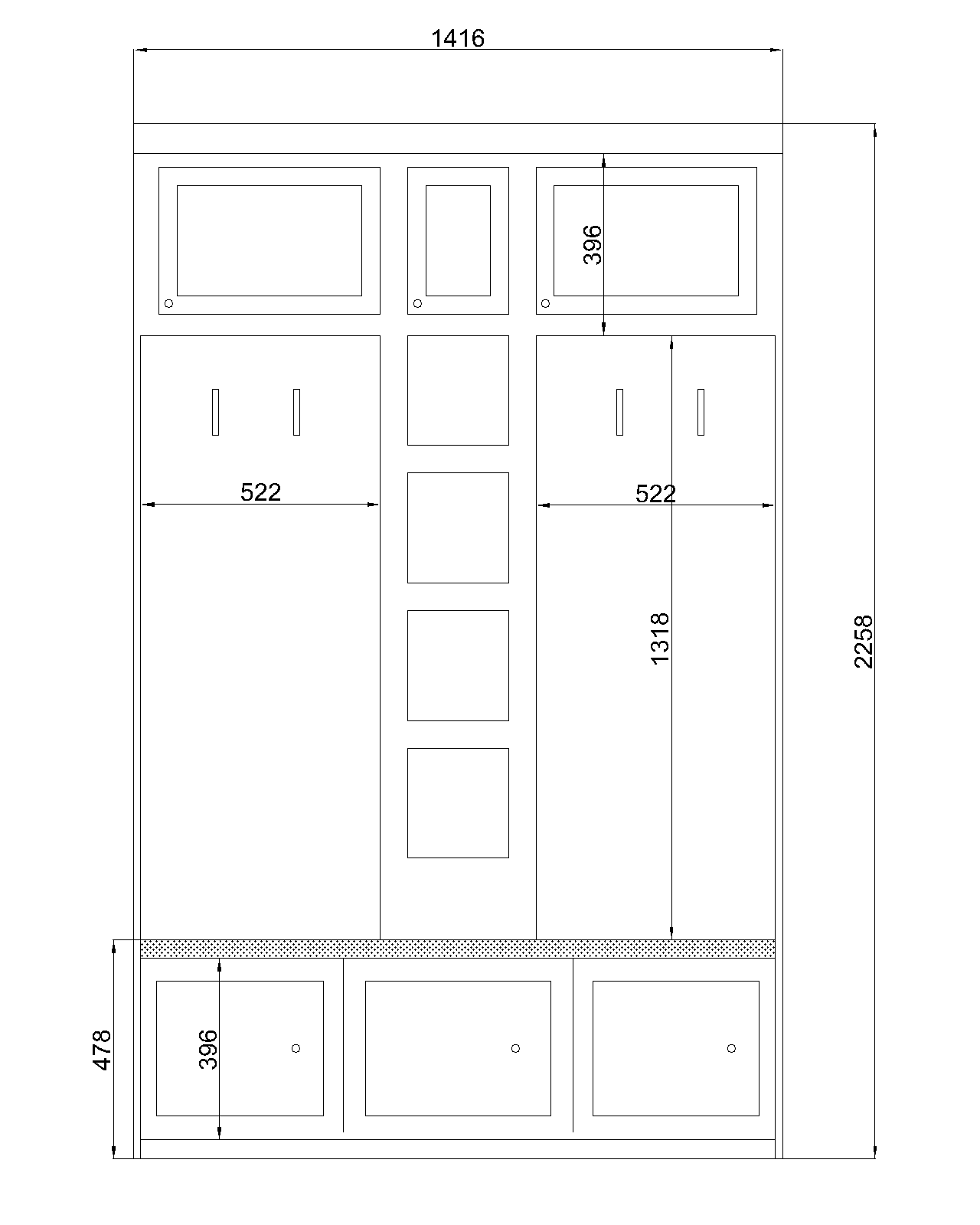
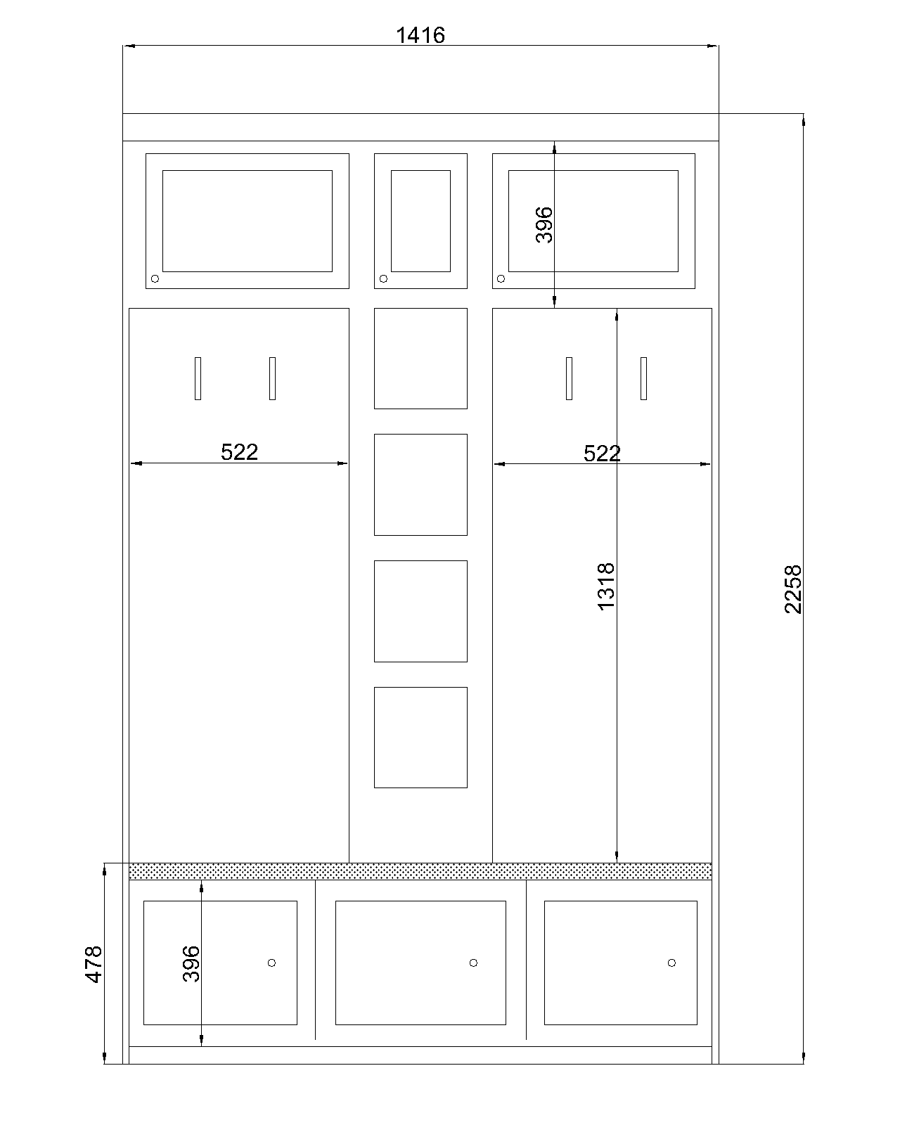
Сабж. Эскиз прикладываю. Размеры можно плюс-минус пару сантиметров. Фасад-двери с филенками можно. Глубина 450мм. Посредине открытые полки. Вариант материала: сосна и вариант с ДСП/МДФ.

Сабж. Эскиз прикладываю

Змінено Egouar (10:22 14/11/2016)


Роздрукувати   Нагадати!   Сповістити модератора   Відправити по E-mail
Супер писатель! **
17 лет за рулем, Киев
Сообщения: 3241
С нами с 03.05.2015

Re: Хочу сделать прихожую на заказ. Кто из камрадов ? [Re: Egouar]
      14 ноября 2016 в 12:21 Гілками

Отправил в личку. Жду доп информацию для предварительного расчёта стоимости.

Роздрукувати   Нагадати!   Сповістити модератора   Відправити по E-mail
Достоевский **
30 лет за рулем, Киев
Сообщения: 9624
С нами с 14.12.2005

Re: Хочу сделать прихожую на заказ. Кто из камрадов ? [Re: Egouar]
      14 ноября 2016 в 14:28 Гілками

Примажусь к теме.
Тоже нужно сделать прихожую. Если сделают хорошо и недорого будут еще заказы на мебель.


Роздрукувати   Нагадати!   Сповістити модератора   Відправити по E-mail
СуперСтар *
44 года, Киев
Сообщения: 4090
С нами с 10.03.2006

Re: Хочу сделать прихожую на заказ. Кто из камрадов ? [Re: Krolikovod]
      16 ноября 2016 в 10:11 Гілками

Кинул. Где ответ?

Роздрукувати   Нагадати!   Сповістити модератора   Відправити по E-mail
Супер писатель! **
17 лет за рулем, Киев
Сообщения: 3241
С нами с 03.05.2015

Re: Хочу сделать прихожую на заказ. Кто из камрадов ? [Re: Egouar]
      16 ноября 2016 в 12:27 Гілками

Egouar 16.11.2016 10:11 пишет:

Кинул. Где ответ?



Уже ответил)))


Роздрукувати   Нагадати!   Сповістити модератора   Відправити по E-mail
Autoua.netФорумВирішення побутових проблем
Додаткова інформація
4 користувачів і 122 що побажали залишитися невідомими читають цей форум.

Модератор:  AlMat, doctor_b, moderator, Outdriver 

Роздрукувати всю тему

Права
      Ви не можете створювати нові теми
      Ви не можете відповідати на повідомлення
      HTML дозволений
      UBBCode дозволений

Рейтинг:
Переглядів теми: 1507

Оціните цю тему

Перейти в

Правила конференції | Календар | FAQ | Карта розділу | Мобільна версія