autoua
×
Autoua.netФорумБудівництво та ремонт нерухомості

Ищу Бригаду с рекомендациями от застройщиков.

старожил *
50 лет (28 лет за рулем), Новосілки (Вишгородський)
Сообщения: 665
С нами с 14.05.2004

Ищу Бригаду с рекомендациями от застройщиков.
      9 марта 2017 в 16:28 Гілками Прикріплені файли (0 завантажити)

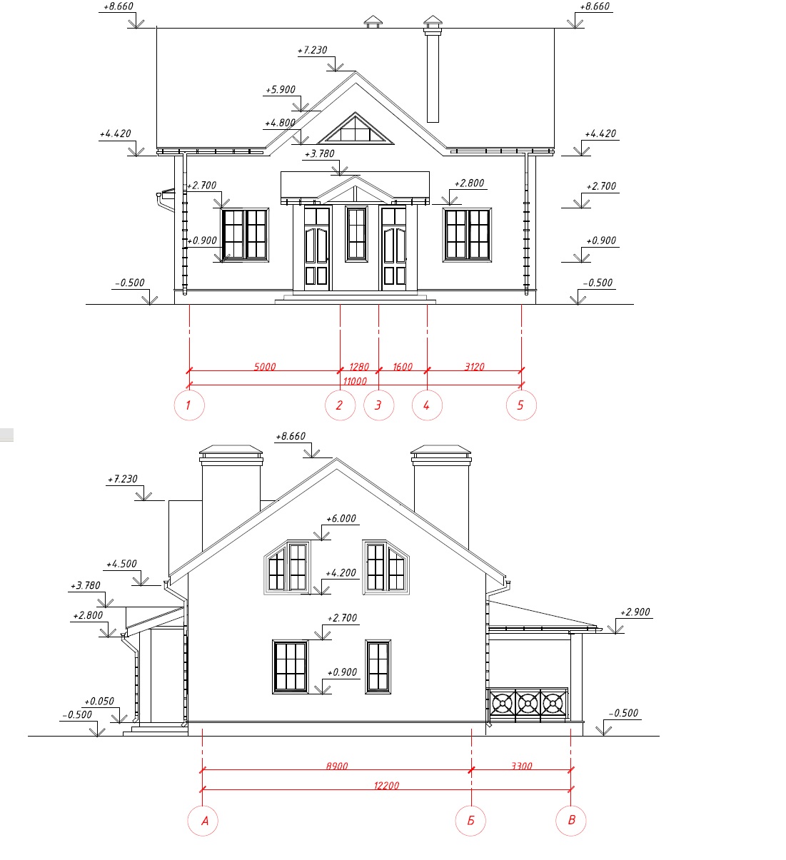
Планируем продолжить строительство (осенью сделали фундамент 10х12) с. Нвосёлки вышгородского района ориентировочно с апреля:
объём работ :
- грунтовые работы под черновую стяжку (выравнивание + закладка канализации + гидроизоляция + утеплитель - по технологии "плавающий" пол)
- черновая стяжка 92 м кв на грунт
- Кладка 2НФ (в полтора кирпича) - 76 кубов
- кладка межкомнатных 150 кв метров
- литьё оконных перемычек и дверных
- армопояс (под мауэрлат и над окнами фронтонов ) ~ 54 м погонных
- пятки + армояс под террасу 6х3 + 3 колонны под кровлю + ступенька
- пятки + армояс под крыльцо 4,1х1,6+ 2 колонны под кровлю + 2 ступеньки + пандус на одну сторону

- кровля общая 214 кв метров (двускатка + кукушка , терраса , крыльцо) , 18 стропил на сторону, утеплитель 50+100+50, битумная черепица.


в наличии: вода , свет , кирпич, клей, лес , арматура, сыпучие, туалет , сухой склад, проект , тех контроль.

пока общались с прорабами - на наш ценник не выходим (дорисовывают 20- 35 тгрн).

Хотим до осени закончить этот этап.

Рады будем рекомендациям и понаблюдать результат работы .

Планируем продолжить строительство (осенью сделали фундамент 10х12) с. Нвосёлки вышгородского района ориентировочно с апреля: объём работ : - грунтовые работы под черновую стяжку (выравнивание + закладка канализации + гидроизоляция + утеплитель - по технологии "плавающий" пол)- черновая стяжка 92 м кв на грунт- Кладка 2НФ (в полтора кирпича) - 76 кубов- кладка межкомнатных 150 кв метров- литьё оконных перемычек  и дверных - армопояс (под мауэрлат и над окнами фронтонов ) ~ 54 м погонных- пятки + армояс под террасу 6х3 + 3 колонны под кровлю + ступенька- пятки + армояс под крыльцо 4,1х1,6+ 2 колонны под кровлю + 2 ступеньки + пандус на одну сторону- кровля общая 214 кв метров (двускатка + кукушка  , терраса , крыльцо) , 18 стропил на сторону, утеплитель 50+100+50, битумная черепица

Змінено Zeallot (19:49 09/03/2017)


Роздрукувати   Нагадати!   Сповістити модератора   Відправити по E-mail
Autoua.netФорумБудівництво та ремонт нерухомості
Додаткова інформація
0 користувачів і 23 що побажали залишитися невідомими читають цей форум.

Модератор:  moderator, Outdriver 

Роздрукувати всю тему

Права
      Ви не можете створювати нові теми
      Ви не можете відповідати на повідомлення
      HTML дозволений
      UBBCode дозволений

Рейтинг:
Переглядів теми: 1369

Оціните цю тему

Перейти в

Правила конференції | Календар | FAQ | Карта розділу | Мобільна версія