autoua
×
Autoua.netФорумБудівництво та ремонт нерухомості

Покритикуйте перепланировку кухни в однушке

СуперСтар **
Киев
Сообщения: 5339
С нами с 29.05.2009

Покритикуйте перепланировку кухни в однушке
      10 апреля 2020 в 13:28 Гілками Прикріплені файли (0 завантажити)

Помогите, пожалуйста, советом. Имеем кухню в однокомнатной квартире (с хорошим панорамным видом, который хочется по максимуму задействовать) в которой необходимо предусмотреть хотя бы одно гостевое место для сна.
На присоединенную лоджию планируется поставить кресло кровать.
Стол в принципе можно и для троих, подоконный блок планируется восстанавливать из гипсокартона и в нем сделать нишу для батареи.
Что скажете? Есть какие то идеи? Как бы Вы себе сделали?

Помогите, пожалуйста, советом. Имеем кухню в однокомнатной квартире (с хорошим панорамным видом, который хочется по максимуму задействовать) в которой необходимо предусмотреть хотя бы одно гостевое место для сна


Роздрукувати   Нагадати!   Сповістити модератора   Відправити по E-mail
СуперСтар **
Киев
Сообщения: 5339
С нами с 29.05.2009

Re: Покритикуйте перепланировку кухни в однушке [Re: chEL]
      10 апреля 2020 в 13:34 Гілками Прикріплені файли (0 завантажити)

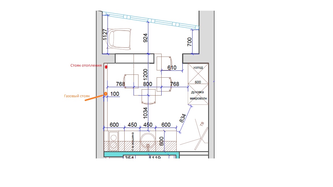
пока так

пока так


Роздрукувати   Нагадати!   Сповістити модератора   Відправити по E-mail
V.I.P ***
42 года (25 лет за рулем),
Сообщения: 14122
С нами с 17.02.2009

Re: Покритикуйте перепланировку кухни в однушке [Re: chEL]
      10 апреля 2020 в 15:32 Гілками Прикріплені файли (0 завантажити)

Тут однозначно подоконную четверть (восстановленную) использовать как стол или часть складного стола, там с ходу сантиметров 50 полезной ширины будет. Это освобождает место в кухне и для того, чтобы позавтракать вдвоем вполне хватит стационарной части, если надо больше - разложить крыло и получается полноценный стол. Возможно даже пойти дальше и выдвинуть или сделать раскладную часть столешницы со стороны лоджии, там поставить стулья, а кресло раскладное поставить зеркально у противоположной стенки.
Первый вариант что-то типа этого:

Тут однозначно подоконную четверть (восстановленную) использовать как стол или часть складного стола, там с ходу сантиметров 50 полезной ширины будет. Это освобождает место в кухне и для того, чтобы позавтракать вдвоем вполне хватит стационарной части, если надо больше - разложить крыло и получается полноценный стол

Змінено GreenMile (15:33 10/04/2020)


Роздрукувати   Нагадати!   Сповістити модератора   Відправити по E-mail
важничающий писатель ***
46 лет, Киев
Сообщения: 2033
С нами с 04.12.2006

Re: Покритикуйте перепланировку кухни в однушке [Re: chEL]
      13 апреля 2020 в 16:38 Гілками

chEL 10.04.2020 13:28 пишет:


На присоединенную лоджию планируется поставить кресло кровать.




А что это за кресло у вас в таком размере? Да еще и раскладное. Как-то сильно непохоже на правду, нужно чертить его разложенным и искать конкретный экземпляр.


Роздрукувати   Нагадати!   Сповістити модератора   Відправити по E-mail
важничающий писатель ***
46 лет, Киев
Сообщения: 2033
С нами с 04.12.2006

Re: Покритикуйте перепланировку кухни в однушке [Re: chEL]
      13 апреля 2020 в 17:26 Гілками

А какие общие габариты кухни?
Я бы не перекрывала шкафами вид от входа в кухню, очень громоздко на такой площади холодильник + колонна. Духовку бы ставила в нижнем ряду, 2в1 с микроволновкой или от микроволновки отказалась бы вообще. Кухню бы ставила вдоль той стены, где стояки (нельзя ли, кстати, отказаться от газа и обрезать трубу? может хватит мощности для электрической варочной).
Если стол предполагается на 2 человека, то ставила бы небольшой круглый столик d=800 и 2 стула на лоджии. Непонятно, кстати, там в один уровень пол или на лоджии выше? Если в один, то стульев можно больше втулить, и при желании стол выдвигать на середину. А в кухне бы поставила небольшой диванчик типа Блест грант, компактнее раскладного просто не знаю.
Подоконный блок не восстанавливала бы, только сформировала нишу для того, чтобы адекватно стал кухонный гарнитур. А радиатор поставила бы высокий узкий вдоль откоса, и теплый пол на лоджии.
Телек бы над дверью не вешала, эстетически не нравится.
http://prntscr.com/ryhfvr


Роздрукувати   Нагадати!   Сповістити модератора   Відправити по E-mail
СуперСтар **
Киев
Сообщения: 5339
С нами с 29.05.2009

Re: Покритикуйте перепланировку кухни в однушке [Re: zyoma]
      14 апреля 2020 в 23:03 Гілками

zyoma 13.04.2020 16:38 пишет:

chEL 10.04.2020 13:28 пишет:


На присоединенную лоджию планируется поставить кресло кровать.




А что это за кресло у вас в таком размере? Да еще и раскладное. Как-то сильно непохоже на правду, нужно чертить его разложенным и искать конкретный экземпляр.



например вот
https://jysk.ua/vitalnya/sofi-lizhka/kri...mp;gclsrc=aw.ds


Роздрукувати   Нагадати!   Сповістити модератора   Відправити по E-mail
СуперСтар **
Киев
Сообщения: 5339
С нами с 29.05.2009

Re: Покритикуйте перепланировку кухни в однушке [Re: zyoma]
      14 апреля 2020 в 23:28 Гілками

zyoma 13.04.2020 17:26 пишет:

А какие общие габариты кухни?
Я бы не перекрывала шкафами вид от входа в кухню, очень громоздко на такой площади холодильник + колонна. Духовку бы ставила в нижнем ряду, 2в1 с микроволновкой или от микроволновки отказалась бы вообще. Кухню бы ставила вдоль той стены, где стояки (нельзя ли, кстати, отказаться от газа и обрезать трубу? может хватит мощности для электрической варочной).
Если стол предполагается на 2 человека, то ставила бы небольшой круглый столик d=800 и 2 стула на лоджии. Непонятно, кстати, там в один уровень пол или на лоджии выше? Если в один, то стульев можно больше втулить, и при желании стол выдвигать на середину. А в кухне бы поставила небольшой диванчик типа Блест грант, компактнее раскладного просто не знаю.
Подоконный блок не восстанавливала бы, только сформировала нишу для того, чтобы адекватно стал кухонный гарнитур. А радиатор поставила бы высокий узкий вдоль откоса, и теплый пол на лоджии.
Телек бы над дверью не вешала, эстетически не нравится.
http://prntscr.com/ryhfvr



Спасибо за вариант, мне он нравится. Но на лоджии будет ступенька сантиметров 10 точно, там хитрая балка вместе с плитой перекрытия идет, сносить ее не буду. И как быть с газовой трубой - ее вообще нельзя прятать наглухо. В моем варианте она будет спрятана за съемными деревянными декоративными рейками от потолка до пола.
Холодильник в угол ближе к санузлу? Но как быть с канализацией? Резать горизонтальную штробу?
Габариты кухни 2,5 (по стене где стояки) на 3,05. Если 2,5 метра минус 0,6 м на холодильник и 0,6 м на духовку, минус 0,45 на мусорное ведро, то нижних ящиков остается только 85 сантиметров
В ответ на:

Подоконный блок не восстанавливала бы, только сформировала нишу для того, чтобы адекватно стал кухонный гарнитур.


- это как? расширить по ширине нижней тумбы?

Змінено chEL (23:43 14/04/2020)


Роздрукувати   Нагадати!   Сповістити модератора   Відправити по E-mail
важничающий писатель ***
46 лет, Киев
Сообщения: 2033
С нами с 04.12.2006

Re: Покритикуйте перепланировку кухни в однушке [Re: chEL]
      15 апреля 2020 в 17:02 Гілками

Так по картинке ж не видно, где канализация) А стены из чего?

Роздрукувати   Нагадати!   Сповістити модератора   Відправити по E-mail
подсевший на форум **
38 лет за рулем, Киев
Сообщения: 26557
С нами с 31.10.2014

Re: Покритикуйте перепланировку кухни в однушке [Re: chEL]
      15 апреля 2020 в 17:11 Гілками

Якщо планується спати у тому кріслі на балконі, то може туди через залишок стіни вивести ще один радіатор опалення і повісити його на бокову стінку лоджії (там де довжина 1127 мм). Бо інакще там буде сиро і некомфортно біля скляної стіни узимку.

Роздрукувати   Нагадати!   Сповістити модератора   Відправити по E-mail
СуперСтар **
Киев
Сообщения: 5339
С нами с 29.05.2009

Re: Покритикуйте перепланировку кухни в однушке [Re: zyoma]
      15 апреля 2020 в 18:17 Гілками

zyoma 15.04.2020 17:02 пишет:

Так по картинке ж не видно, где канализация) А стены из чего?



Нижняя стена из гипсокартона, все остальное ж/б плиты
Канализация выходит из примыкающего внизу санузла, около 60 см, от нижнего левого угла


Роздрукувати   Нагадати!   Сповістити модератора   Відправити по E-mail
СуперСтар **
Киев
Сообщения: 5339
С нами с 29.05.2009

Re: Покритикуйте перепланировку кухни в однушке [Re: harald67]
      15 апреля 2020 в 18:20 Гілками

harald67 15.04.2020 17:11 пишет:

Якщо планується спати у тому кріслі на балконі, то може туди через залишок стіни вивести ще один радіатор опалення і повісити його на бокову стінку лоджії (там де довжина 1127 мм). Бо інакще там буде сиро і некомфортно біля скляної стіни узимку.



Будет электрический тёплый пол. Как вариант вторая батарея будет со второй стороны подоконного блока


Роздрукувати   Нагадати!   Сповістити модератора   Відправити по E-mail
важничающий писатель ***
46 лет, Киев
Сообщения: 2033
С нами с 04.12.2006

Re: Покритикуйте перепланировку кухни в однушке [Re: chEL]
      15 апреля 2020 в 19:00 Гілками

Я бы газ вообще обрезала)
Посмотрела поверхности на 2 конфорки, там 3 кВт суммарная мощность, мне кажется в панельке должно хватить. Если не обрезать, то смотреть на дизайн в целом, вообще я бы не прятала стояки, а пропускала сквозь шкафы, покрасить в цвет кухонного фартука или контрастный. Вот тут варианты: https://www.houzz.ru/statyi/kak-pravilyn...vw-vs~113583959

Со сливом сложнее) Мне так кажется, что, если холодильник встроенный, можно место за ним (или чуть выдвинуть его) использовать, чтобы трубу слива не под 90 завернуть, а 2х45, но это нужно уже по месту консультироваться с сантехником. Печально, конечно, когда стояк не в углу.


Роздрукувати   Нагадати!   Сповістити модератора   Відправити по E-mail
СуперСтар **
Киев
Сообщения: 5339
С нами с 29.05.2009

Re: Покритикуйте перепланировку кухни в однушке [Re: zyoma]
      15 апреля 2020 в 20:03 Гілками Прикріплені файли (0 завантажити)

zyoma 15.04.2020 19:00 пишет:

Я бы газ вообще обрезала)
Посмотрела поверхности на 2 конфорки, там 3 кВт суммарная мощность, мне кажется в панельке должно хватить. Если не обрезать, то смотреть на дизайн в целом, вообще я бы не прятала стояки, а пропускала сквозь шкафы, покрасить в цвет кухонного фартука или контрастный. Вот тут варианты: https://www.houzz.ru/statyi/kak-pravilyn...vw-vs~113583959

Со сливом сложнее) Мне так кажется, что, если холодильник встроенный, можно место за ним (или чуть выдвинуть его) использовать, чтобы трубу слива не под 90 завернуть, а 2х45, но это нужно уже по месту консультироваться с сантехником. Печально, конечно, когда стояк не в углу.



Ого, откуда такие познания что надо два по 45, а не один 90?
После твоего варианта, я теперь думаю как бы холодильник засунуть в санузел
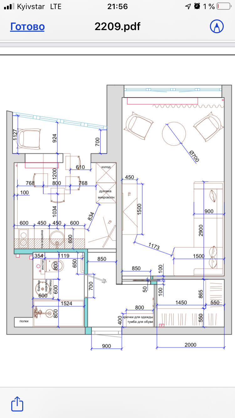
Вот вся планировка. Стены из гипса ещё не строил, электричество правда почти раскинул

Ого, откуда такие познания что надо два по 45, а не один 90.  После твоего варианта, я теперь думаю как бы холодильник засунуть в санузел  Вот вся планировка


Роздрукувати   Нагадати!   Сповістити модератора   Відправити по E-mail
СуперСтар **
Киев
Сообщения: 5339
С нами с 29.05.2009

Re: Покритикуйте перепланировку кухни в однушке [Re: zyoma]
      15 апреля 2020 в 20:05 Гілками

Да и второй вариант размещения телевизора на стене стояков на поворотном кронштейне для доступа к газовому крану

Роздрукувати   Нагадати!   Сповістити модератора   Відправити по E-mail
СуперСтар **
Киев
Сообщения: 5339
С нами с 29.05.2009

Re: Покритикуйте перепланировку кухни в однушке [Re: zyoma]
      15 апреля 2020 в 20:20 Гілками

Если я обрежу газ, то его не будет у половины стояка

Роздрукувати   Нагадати!   Сповістити модератора   Відправити по E-mail
подсевший на форум **
38 лет за рулем, Киев
Сообщения: 26557
С нами с 31.10.2014

Re: Покритикуйте перепланировку кухни в однушке [Re: chEL]
      15 апреля 2020 в 20:56 Гілками

chEL 15.04.2020 20:20 пишет:

Если я обрежу газ, то его не будет у половины стояка




А сам будеш дуже здивований, скільки це тобі коштуватиме. Газ краще не чіпати.


Роздрукувати   Нагадати!   Сповістити модератора   Відправити по E-mail
СуперСтар **
Киев
Сообщения: 5339
С нами с 29.05.2009

Re: Покритикуйте перепланировку кухни в однушке [Re: harald67]
      15 апреля 2020 в 21:00 Гілками

harald67 15.04.2020 20:56 пишет:

chEL 15.04.2020 20:20 пишет:

Если я обрежу газ, то его не будет у половины стояка




А сам будеш дуже здивований, скільки це тобі коштуватиме. Газ краще не чіпати.



Спасибо даже и не думал его трогать


Роздрукувати   Нагадати!   Сповістити модератора   Відправити по E-mail
важничающий писатель ***
46 лет, Киев
Сообщения: 2033
С нами с 04.12.2006

Re: Покритикуйте перепланировку кухни в однушке [Re: chEL]
      15 апреля 2020 в 21:26 Гілками

Блин, стояк конечно неудачно расположен. Но хз, может все-таки внутри гк можно пройти, я кнчн женщина сложной судьбы и знаю про 2х45, но квартиру надо живьем показывать сантехнику.

Или вот так: http://prntscr.com/s008lk

Угловую кухню, холодильник завернуть, а соседнюю угловую секцию тоже сделать до потолка под хранение. От мойки до стояка дотянуться через низ угловой секции без поворотов ну или как сантехник скажет, сквозь тумбу, если повезет с высотой сквозь цоколь. В глухой этой секции кроме трубы тоже какой-то хранение, может осмос. Духовки тоже есть 450, особенно если это под сдачу квартира. Еще можно под хранение использовать цоколь (там, где нет канашки гг), делают ящики в цоколе. Если все влезет в нижние ящики и угловую секцию, можно без верхних шкафов и действительно телек туда втулить (но не над варочной, конечно). Хотя даже если сделать угловую кухню, на остаток стены влезет и 40 дюймов.

Подоконный блок - имела в виду как-то выровнять с кухонным гарнитуром, чтобы было меньше разных углов. Чтобы стена повторяла контур нижнего рядка кухни (можно даже стотешницей ее накрыть) или наружный край радиатора.

Радиатор на лоджии от системы отопления незаконно и нехорошо по отношению к соседям) Конвектор или ТП электрические надо. Холодильник в тубзике тоже незаконно, но всегда можно сказать, что он для косметики!

Да, про газ я психанула) Хотя я бы наверное все равно электрическую варочную ставила, выглядит лаконичнее, нет копоти.


Роздрукувати   Нагадати!   Сповістити модератора   Відправити по E-mail
ssb
Достоевский **
36 лет (18 лет за рулем), Киев
Сообщения: 7270
С нами с 25.01.2008

Re: Покритикуйте перепланировку кухни в однушке [Re: harald67]
      16 апреля 2020 в 11:00 Гілками

harald67 15.04.2020 20:56 пишет:

А сам будеш дуже здивований, скільки це тобі коштуватиме. Газ краще не чіпати.


Это почему? Мне обрезали и заваривали газ пару месяцев назад, стоило каких-то не особо космических денег. Вот пустить трубу так чтоб она не бросалась в глаза - эт да, там числа были впечатляющие

Змінено ssb (11:01 16/04/2020)


Роздрукувати   Нагадати!   Сповістити модератора   Відправити по E-mail
Autoua.netФорумБудівництво та ремонт нерухомості
Додаткова інформація
0 користувачів і 31 що побажали залишитися невідомими читають цей форум.

Модератор:  moderator, Outdriver 

Роздрукувати всю тему

Права
      Ви не можете створювати нові теми
      Ви не можете відповідати на повідомлення
      HTML дозволений
      UBBCode дозволений

Рейтинг:
Переглядів теми: 2847

Оціните цю тему

Перейти в

Правила конференції | Календар | FAQ | Карта розділу | Мобільна версія