autoua
×
Autoua.netФорумБудівництво та ремонт нерухомості

Может кто знает название проэкта?

photographer ****
54 года (31 год за рулем), Киев
Сообщения: 2900
С нами с 05.07.2001

Может кто знает название проэкта?
      11 января 2008 в 15:54 Гілками

Проэт вот такой


Скачал себе arcon и проекты к нему, такого нет, названия там такие П-3М, П-44М. Какое название у проекта на картинке? Может даже у кого в arcon есть нарисованный?


Роздрукувати   Нагадати!   Сповістити модератора   Відправити по E-mail
V.I.P ***
65 лет, Запорожье
Сообщения: 13226
С нами с 27.04.2002

Re: Может кто знает название проэкта? [Re: photographer]
      13 января 2008 в 13:09 Гілками

В ответ на:

Скачал себе arcon



А откуда качал? Тоже хочу. Поделись адресом.
За проект не знаю ничего.


Роздрукувати   Нагадати!   Сповістити модератора   Відправити по E-mail
photographer ****
54 года (31 год за рулем), Киев
Сообщения: 2900
С нами с 05.07.2001

Re: Может кто знает название проэкта? [Re: Intern]
      13 января 2008 в 13:34 Гілками

Вот отсюда http://torrents.ru/
Требуется регистрация и установка торрент клиента. Ты качаешь потом отдаешь, завязано на рейтинг. Просто так скачать все что хочешь не получится. Отдачей и контролем занимается клиент, автоматически.


Роздрукувати   Нагадати!   Сповістити модератора   Відправити по E-mail
V.I.P ***
65 лет, Запорожье
Сообщения: 13226
С нами с 27.04.2002

Re: Может кто знает название проэкта? [Re: photographer]
      13 января 2008 в 13:37 Гілками

Добре. Попробую разобраться.

Роздрукувати   Нагадати!   Сповістити модератора   Відправити по E-mail
Будівельник ****
46 лет (19 лет за рулем), Киев
Сообщения: 1628
С нами с 05.12.2005

Re: Может кто знает название проэкта? [Re: photographer]
      15 января 2008 в 13:23 Гілками

а тобі саме цей проект потрібний, чи просто баготоповерховий каркас?
ЗІ:аркон фігня повна, рулить архікад в парі з артлантісом


Роздрукувати   Нагадати!   Сповістити модератора   Відправити по E-mail
photographer ****
54 года (31 год за рулем), Киев
Сообщения: 2900
С нами с 05.07.2001

Re: Может кто знает название проэкта? [Re: Ravl]
      15 января 2008 в 18:47 Гілками

Да я от лени, чтобы план квартиры не рисовать. Меня аркон наверно устроит, т.к. мне просчитать приблизительную планировку, мебель расставить ... Т.е. на мой взгляд ничего сложного мне не надо. А вот "архікад в парі з артлантісом" наверняка потребует от меня серьезного изучения, ради одного раза изучать...

Роздрукувати   Нагадати!   Сповістити модератора   Відправити по E-mail
Будівельник ****
46 лет (19 лет за рулем), Киев
Сообщения: 1628
С нами с 05.12.2005

Re: Может кто знает название проэкта? [Re: photographer]
      16 января 2008 в 09:26 Гілками

ну тада канешна

Роздрукувати   Нагадати!   Сповістити модератора   Відправити по E-mail
Супер писатель! *
Киев
Сообщения: 3333
С нами с 18.05.2007

Re: Может кто знает название проэкта? [Re: photographer]
      14 апреля 2008 в 19:51 Гілками Прикріплені файли (0 завантажити)

В ответ на:

Проэт вот такой


Скачал себе arcon и проекты к нему, такого нет, названия там такие П-3М, П-44М. Какое название у проекта на картинке? Может даже у кого в arcon есть нарисованный?




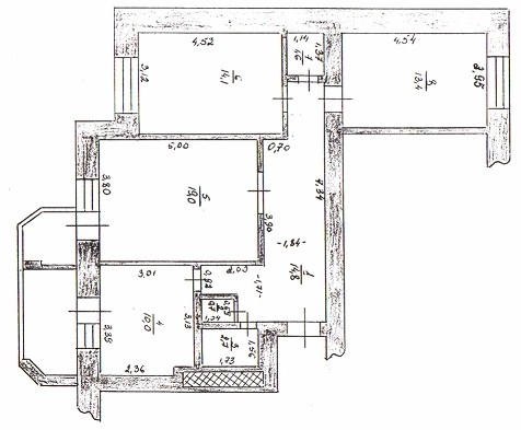
у меня тоже нетиповая планировка. похожа на П-3М
Может кто подскажит точную?
Вот план:

у меня тоже нетиповая планировка. похожа на П-3М Может кто подскажит точную


Роздрукувати   Нагадати!   Сповістити модератора   Відправити по E-mail
Супер писатель! *
Киев
Сообщения: 3333
С нами с 18.05.2007

Re: Может кто знает название проэкта? [Re: Mikeee]
      14 апреля 2008 в 19:52 Гілками Прикріплені файли (0 завантажити)

А вот нашел перепланировку квартиры, которая похожа на мою (на сайте идеи вашего дома)

А вот нашел перепланировку квартиры, которая похожа на мою (на сайте идеи вашего дома)


Роздрукувати   Нагадати!   Сповістити модератора   Відправити по E-mail
Autoua.netФорумБудівництво та ремонт нерухомості
Додаткова інформація
0 користувачів і 9 що побажали залишитися невідомими читають цей форум.

Модератор:  moderator, Outdriver 

Роздрукувати всю тему

Права
      Ви не можете створювати нові теми
      Ви не можете відповідати на повідомлення
      HTML дозволений
      UBBCode дозволений

Рейтинг:
Переглядів теми: 2802

Оціните цю тему

Перейти в

Правила конференції | Календар | FAQ | Карта розділу | Мобільна версія