autoua
×
Autoua.netФорумБудівництво та ремонт нерухомості

Подскажите по примерной стоимости такой ремонт

Супер писатель! *
Киев
Сообщения: 3333
С нами с 18.05.2007

Подскажите по примерной стоимости такой ремонт
      10 мая 2008 в 17:48 Гілками Прикріплені файли (0 завантажити)

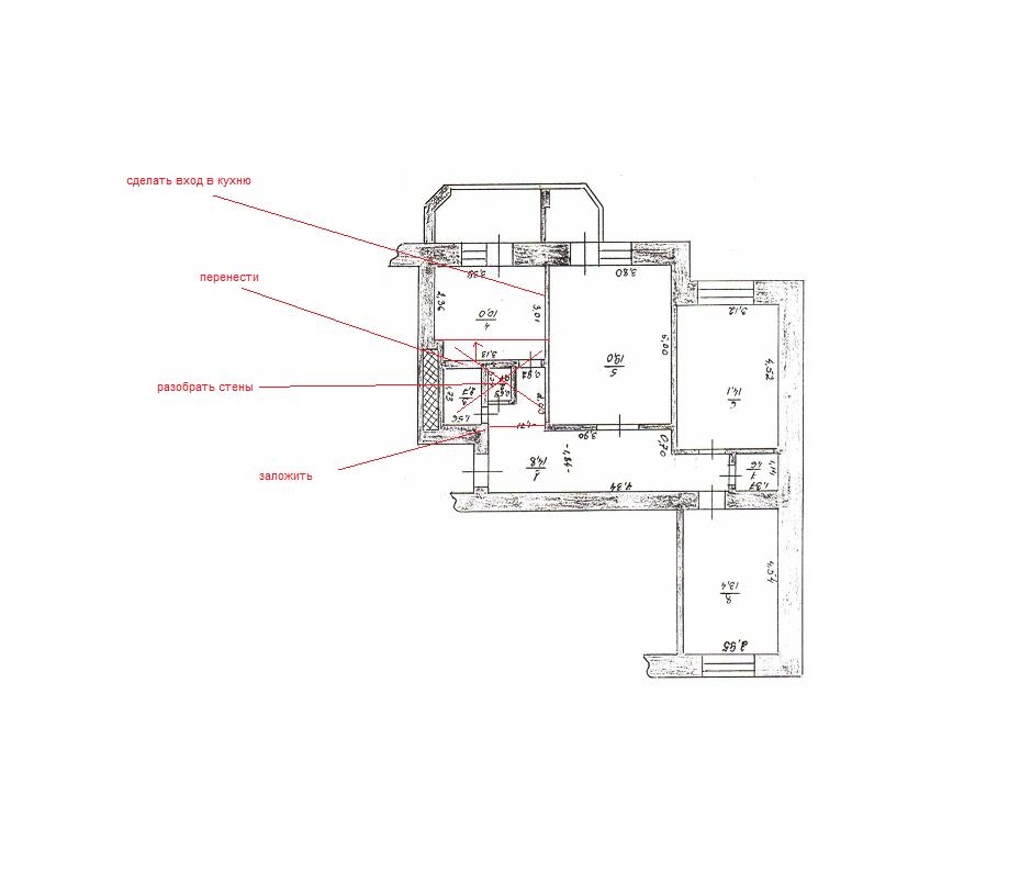
Надо:

1. Перенести стену ванной в сторону кухни (стена сейчас из гипсокартона)
2. Заложить имеющийся коридор (гипс?)
3. Разобрать внутренние стены ванной и туалета (кирпич+гипсокартон)
4. Сделать в стене вход в кухню
рисунок прилагается.
5. Сделать ремонт в объедененном санузле 7 кв.м: стяжка, стены, плитка на пол, плитка на стены, потолок - пластик, зашить шахту, поменять трубы, в шахту поместить бойлер.
6. Поставить ванную (акрил, длина 1,8 м), унитаз, раковину с шкафчиками, душевую кабину, сушилку для полотенец.
7. Поставить двери, развести проводку.

Может кто-то делал нечто похожее - поделитесь сметой плз!

Буду благодарен за любую помощь!

Надо:1. Перенести стену ванной в сторону кухни (стена сейчас из гипсокартона)2

Змінено Mikeee (17:58 10/05/2008)


Роздрукувати   Нагадати!   Сповістити модератора   Відправити по E-mail
Супер писатель! ***
NEW Belici Country
Сообщения: 2892
С нами с 29.11.2007

Re: Подскажите по примерной стоимости такой ремонт [Re: Mikeee]
      10 мая 2008 в 19:23 Гілками

на глаз около 2500-3000 зеленых, без материалов.

Роздрукувати   Нагадати!   Сповістити модератора   Відправити по E-mail
talik ****
23 года за рулем, Киев
Сообщения: 2293
С нами с 02.06.2004

Re: Подскажите по примерной стоимости такой ремонт [Re: Mikeee]
      11 мая 2008 в 00:21 Гілками

У меня через пару дней освобождаются отличные, имхо, мастера. Днем пришли, послушали, все померяли, к вечеру прислали смету по работе. Кое-что уточнили по телефону и устно договорились. На след. день получил список необходимых материалов с учетом моего согласия ездить докупать. Работают как СПД. Пришли поменяли договор на предоплату и сразу приступили к работе. Я ими очень доволен и в знак признания им, при необходимости, дам их контакты.

Роздрукувати   Нагадати!   Сповістити модератора   Відправити по E-mail
ids   1
Скандалист **
Kiev
Сообщения: 22391
С нами с 11.06.2005

Re: Подскажите по примерной стоимости такой ремонт [Re: Mikeee]
      11 мая 2008 в 10:45 Гілками

Как решать вопросы с бти?

Роздрукувати   Нагадати!   Сповістити модератора   Відправити по E-mail
Супер писатель! *
Киев
Сообщения: 3333
С нами с 18.05.2007

Re: Подскажите по примерной стоимости такой ремонт [Re: Vitalikaqua]
      11 мая 2008 в 19:08 Гілками

В ответ на:

У меня через пару дней освобождаются отличные, имхо, мастера. Днем пришли, послушали, все померяли, к вечеру прислали смету по работе. Кое-что уточнили по телефону и устно договорились. На след. день получил список необходимых материалов с учетом моего согласия ездить докупать. Работают как СПД. Пришли поменяли договор на предоплату и сразу приступили к работе. Я ими очень доволен и в знак признания им, при необходимости, дам их контакты.




буду благодарен за контакты! В Вышгороде согласятся работать?


Роздрукувати   Нагадати!   Сповістити модератора   Відправити по E-mail
Супер писатель! *
Киев
Сообщения: 3333
С нами с 18.05.2007

Re: Подскажите по примерной стоимости такой ремонт [Re: ids]
      11 мая 2008 в 19:09 Гілками

В ответ на:

Как решать вопросы с бти?




а что такую перепланировку тяжело узаконить?


Роздрукувати   Нагадати!   Сповістити модератора   Відправити по E-mail
talik ****
23 года за рулем, Киев
Сообщения: 2293
С нами с 02.06.2004

Re: Подскажите по примерной стоимости такой ремонт [Re: Mikeee]
      11 мая 2008 в 23:04 Гілками

В ответ на:

В Вышгороде согласятся работать?



Без понятия. Контакты отправил в личку.


Роздрукувати   Нагадати!   Сповістити модератора   Відправити по E-mail
Супер писатель! *
Киев
Сообщения: 3333
С нами с 18.05.2007

Re: Подскажите по примерной стоимости такой ремонт [Re: Vitalikaqua]
      12 мая 2008 в 08:50 Гілками

В ответ на:

В ответ на:

В Вышгороде согласятся работать?



Без понятия. Контакты отправил в личку.




Спасибо!


Роздрукувати   Нагадати!   Сповістити модератора   Відправити по E-mail
deleted
Анонім
Сообщения:
С нами с

Re: Подскажите по примерной стоимости такой ремонт [Re: Mikeee]
      12 мая 2008 в 10:00 Гілками

В ответ на:

В ответ на:

Как решать вопросы с бти?




а что такую перепланировку тяжело узаконить?



думаю очень тяжело.
навскидку не вспомню, но что то было про санузел и кухню. Вроде нельзя санузел над кухней или жилой комнатой делать.


Роздрукувати   Нагадати!   Сповістити модератора   Відправити по E-mail
Достоевский **
Киев
Сообщения: 9305
С нами с 31.05.2005

Re: Подскажите по примерной стоимости такой ремонт [Re: ]
      12 мая 2008 в 10:29 Гілками

В ответ на:

навскидку не вспомню, но что то было про санузел и кухню. Вроде нельзя санузел над кухней или жилой комнатой делать.



Запрещено увеличить «мокрые» зоны за счёт жилых площадей, т.е. нельзя увеличивать за счёт комнат. Вероятно и за счёт кухни тоже. А вот за счёт коридора IMHO можно, хотя наверняка и тут придётся поднапрячься с БТИ.


Роздрукувати   Нагадати!   Сповістити модератора   Відправити по E-mail
deleted
Анонім
Сообщения:
С нами с

Re: Подскажите по примерной стоимости такой ремонт [Re: PeterQ]
      12 мая 2008 в 10:48 Гілками

В ответ на:

В ответ на:

навскидку не вспомню, но что то было про санузел и кухню. Вроде нельзя санузел над кухней или жилой комнатой делать.



Запрещено увеличить «мокрые» зоны за счёт жилых площадей, т.е. нельзя увеличивать за счёт комнат. Вероятно и за счёт кухни тоже. А вот за счёт коридора IMHO можно, хотя наверняка и тут придётся поднапрячься с БТИ.




это да, но вроде ище про кухни отдельно было прописно. Нет?
у топикстартера как раз стена с кухней двигается, т.е. за счет кухни увеличение


Роздрукувати   Нагадати!   Сповістити модератора   Відправити по E-mail
57 лет (31 год за рулем), Киев
Сообщения: 31479
С нами с 28.10.2002

Re: Подскажите по примерной стоимости такой ремонт [Re: Mabilych]
      12 мая 2008 в 12:14 Гілками

В ответ на:

на глаз около 2500-3000 зеленых, без материалов.



а мне на глаз подумалось 3000-3500 с материалами,


Роздрукувати   Нагадати!   Сповістити модератора   Відправити по E-mail
Супер писатель! *
Киев
Сообщения: 3333
С нами с 18.05.2007

Re: Подскажите по примерной стоимости такой ремонт [Re: ]
      13 мая 2008 в 09:16 Гілками

В ответ на:

В ответ на:

В ответ на:

навскидку не вспомню, но что то было про санузел и кухню. Вроде нельзя санузел над кухней или жилой комнатой делать.



Запрещено увеличить «мокрые» зоны за счёт жилых площадей, т.е. нельзя увеличивать за счёт комнат. Вероятно и за счёт кухни тоже. А вот за счёт коридора IMHO можно, хотя наверняка и тут придётся поднапрячься с БТИ.




это да, но вроде ище про кухни отдельно было прописно. Нет?
у топикстартера как раз стена с кухней двигается, т.е. за счет кухни увеличение




спасибо за активную дискуссию.
на самом деле стена на кухне изначально было там, куда я хочу ее вернуть.
бывший владелец увеличил кухню за счет туалета, а туалет пристроил к ванной в коридоре.
Хочу вернуть стену назад и заложить коридор.


Роздрукувати   Нагадати!   Сповістити модератора   Відправити по E-mail
Супер писатель! *
Киев
Сообщения: 3333
С нами с 18.05.2007

Re: Подскажите по примерной стоимости такой ремонт [Re: Ford-Noks]
      13 мая 2008 в 09:17 Гілками

В ответ на:

В ответ на:

на глаз около 2500-3000 зеленых, без материалов.



а мне на глаз подумалось 3000-3500 с материалами,




имеется ввиду гипсокартон, профили, шпатлевка? какие еще материалы понадобятся?


Роздрукувати   Нагадати!   Сповістити модератора   Відправити по E-mail
СуперСтар ***
55 лет (26 лет за рулем), Киев
Сообщения: 4506
С нами с 30.03.2004

Re: Подскажите по примерной стоимости такой ремонт [Re: Mikeee]
      13 мая 2008 в 10:52 Гілками

кстати нюанс....стенку из ГК внутри надо делать не полой...туда какой-то материал типа пенопласта заложить надоть...

Роздрукувати   Нагадати!   Сповістити модератора   Відправити по E-mail
deleted
Анонім
Сообщения:
С нами с

Re: Подскажите по примерной стоимости такой ремонт [Re: Лана]
      13 мая 2008 в 11:03 Гілками

В ответ на:

кстати нюанс....стенку из ГК внутри надо делать не полой...туда какой-то материал типа пенопласта заложить надоть...



ну сейчас с этим проблем нет, начиная от ваты до пенопласта есть все.


Роздрукувати   Нагадати!   Сповістити модератора   Відправити по E-mail
57 лет (31 год за рулем), Киев
Сообщения: 31479
С нами с 28.10.2002

Re: Подскажите по примерной стоимости такой ремонт [Re: Mikeee]
      13 мая 2008 в 23:38 Гілками

ой блин! там куча всего. начни с песка и цемента, которых нужно будет не меньше чем с полтонны...

Но вопрос был по стоимости. Вот посчитал сегодня - санузел 5 кв.м. в т.ч. бойлер, но без стиралки - 2300 долл. но цены полугодовалой давности, так что сейчас +15-20% А у тебя дополнительно ещё переносы стен. Потому представилось район 3,5 куе.

или ты теперь хочешь узнать перечень материалов, который понадобится?


Роздрукувати   Нагадати!   Сповістити модератора   Відправити по E-mail
Супер писатель! *
Киев
Сообщения: 3333
С нами с 18.05.2007

Re: Подскажите по примерной стоимости такой ремонт [Re: Ford-Noks]
      14 мая 2008 в 06:53 Гілками

В ответ на:



или ты теперь хочешь узнать перечень материалов, который понадобится?




пока интересуют только ценЫ


Роздрукувати   Нагадати!   Сповістити модератора   Відправити по E-mail
Autoua.netФорумБудівництво та ремонт нерухомості
Додаткова інформація
0 користувачів і 51 що побажали залишитися невідомими читають цей форум.

Модератор:  moderator, Outdriver 

Роздрукувати всю тему

Права
      Ви не можете створювати нові теми
      Ви не можете відповідати на повідомлення
      HTML дозволений
      UBBCode дозволений

Рейтинг:
Переглядів теми: 2320

Оціните цю тему

Перейти в

Правила конференції | Календар | FAQ | Карта розділу | Мобільна версія