autoua
×
Autoua.netФорумБудівництво та ремонт нерухомості

помещения под СТО (мойка, покарска)

Супер писатель! **
23 года за рулем, Киев
Сообщения: 2730
С нами с 11.02.2008

помещения под СТО (мойка, покарска)
      2 апреля 2009 в 12:31 Гілками

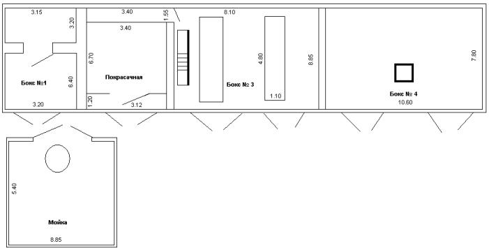
Сдается в долгосрочную аренду (возможно под СТО или склады) охраняемая территория (около 350 кв. м) по адресу: г. Киев, Оболонский район, ул. Бережанская, 9. На территории находятся 4 бокса, автомойка и место для паркинга (площадь боксов 264.8 кв.м).

Покрасочная камера - нет ни света, ни отопления.
Бокс № 3 - имеется свет, отопление, 2 ямы, одна из них засыпана. В не засыпанной яме есть подсветка.
Бокс № 4 - есть свет.
Мойка - есть свет, вытяжка, подвод воды.

Рассматриваются варианты аренды, как всей предлагаемой территории, так и отдельных боксов.

Цена договорная, торгуемся до победного результата.

В приложении фото и схема расположения и размеров боксов. Размеры приведены в метрах.

Контактные телефоны: 8 067 231 37 39 (Александр)
8 067 230 57 88 (Андрей)


Пометка:

1. На арендном рынке стоимость колеблется от 3 дол. до 10 дол. Отличие в месторасположении и коммуникациях. 3 доллара это Дарницкий район убитое здание.
2. В боксе №1 и боксе №3 протекает крыша. Крышу можем починить, но это скажется на стоимости аренды.


Роздрукувати   Нагадати!   Сповістити модератора   Відправити по E-mail
Супер писатель! **
23 года за рулем, Киев
Сообщения: 2730
С нами с 11.02.2008

Re: помещения под СТО (мойка, покарска) [Re: shoo-in]
      2 апреля 2009 в 12:36 Гілками Прикріплені файли (0 завантажити)

фотки кину по и-мейлу (запрос через личку)

фотки кину по и-мейлу (запрос через личку)

Змінено shoo-in (12:37 02/04/2009)


Роздрукувати   Нагадати!   Сповістити модератора   Відправити по E-mail
Autoua.netФорумБудівництво та ремонт нерухомості
Додаткова інформація
0 користувачів і 19 що побажали залишитися невідомими читають цей форум.

Модератор:  moderator, Outdriver 

Роздрукувати всю тему

Права
      Ви не можете створювати нові теми
      Ви не можете відповідати на повідомлення
      HTML дозволений
      UBBCode дозволений

Рейтинг:
Переглядів теми: 1795

Оціните цю тему

Перейти в

Правила конференції | Календар | FAQ | Карта розділу | Мобільна версія