autoua
×
Autoua.netФорумБудівництво та ремонт нерухомості

Перенести дверной проем

старый гоблин **
50 лет (24 года за рулем), Киев
Сообщения: 7284
С нами с 01.06.2011

Перенести дверной проем
      19 декабря 2011 в 19:17 Гілками Прикріплені файли (0 завантажити)

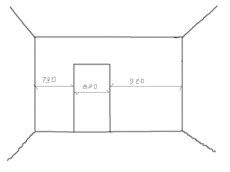
Собственно, вот в чем дело. Планировки домов серии АППС -люкс в принципе хороши, но есть в них некая незавершенность, вызывающая легкую досаду. Один из нюансов у меня в квартире - это дверной проем в гостиную. Он расположен на несущей стене, толщиной 160 мм. Есть задумка трошки его сместить сантиметров на 40 - 45 максимум, так, как показано на рисунке. Можно даже усилить закладку проема швеллером, если надо.
Кто что думает по этому поводу?

Собственно, вот в чем дело. Планировки домов серии АППС -люкс в принципе хороши, но есть в них некая незавершенность, вызывающая легкую досаду


Роздрукувати   Нагадати!   Сповістити модератора   Відправити по E-mail
старый гоблин **
50 лет (24 года за рулем), Киев
Сообщения: 7284
С нами с 01.06.2011

Re: Перенести дверной проем [Re: Энгри]
      19 декабря 2011 в 19:18 Гілками Прикріплені файли (0 завантажити)

А вот первоначальная картинка, так, как есть сейчас.

А вот первоначальная картинка, так, как есть сейчас.

Змінено С. Дали (19:19 19/12/2011)


Роздрукувати   Нагадати!   Сповістити модератора   Відправити по E-mail
26 лет за рулем, Киев
Сообщения: 42199
С нами с 14.01.2008

Re: Перенести дверной проем [Re: Энгри]
      19 декабря 2011 в 23:32 Гілками

я бы, лично мое ИМХО, усилил тем же швеллером, как ты писал, да и перенес. Тока продать потом будет тяжко.

Роздрукувати   Нагадати!   Сповістити модератора   Відправити по E-mail
старый гоблин **
50 лет (24 года за рулем), Киев
Сообщения: 7284
С нами с 01.06.2011

Re: Перенести дверной проем [Re: Абрвалг]
      20 декабря 2011 в 10:44 Гілками

О! Привет, Юра! Та, это еще мелочи. Я еще хочу повыкидывать перегородки на балкон и снести балконный парапет, чтобы стеклянную стену там сделать. Правда перед тем поговорю с одним кадром по поводу узаканивания. Нет, честно, квартира хороша, продавать ее мы не собираемся - лучше уж загородный дом на старости лет, если что, но не высотка. Но еще лет 15- 20 нам в ней сидеть так точно. Вот и хочется как-то ее сделать под себя...

Роздрукувати   Нагадати!   Сповістити модератора   Відправити по E-mail
иной **
25 лет за рулем,
Сообщения: 25057
С нами с 26.12.2001

Re: Перенести дверной проем [Re: Энгри]
      20 декабря 2011 в 10:59 Гілками

Просто с таким переносом проема кажная сабака из жеков и прочих дармоедов будет иметь 100% повод обрушить на тебя пачку проблем.

Роздрукувати   Нагадати!   Сповістити модератора   Відправити по E-mail
старый гоблин **
50 лет (24 года за рулем), Киев
Сообщения: 7284
С нами с 01.06.2011

Re: Перенести дверной проем [Re: Fencer]
      20 декабря 2011 в 11:25 Гілками

Привет, Паша! Ты прав, без узаканивания - да конечно. Меня сейчас больше интересует техническая возможность. Стена-то все таки несущая. Нет, есть конечно вариант загнать квартиру и на эти деньги взять себе какую-нить красивую квартиру, с панорамными окнами, а не бойничками, как у меня, и не париться. Но! Опекунский - раз, продать - два, купить - три. До кризиса - авэк плезир, а сейчас, думаю, что это больший гемор, нежели перерезать хату так, как хочется (в пределах разумного, конечно) и узаконить это все. ИМХО.

Роздрукувати   Нагадати!   Сповістити модератора   Відправити по E-mail
deleted
Анонім
Сообщения:
С нами с

Re: Перенести дверной проем [Re: Энгри]
      20 декабря 2011 в 11:36 Гілками

почни з проекту.
якщо архітектори погодяться поставити свою печатку то далі офіц. шляхом можна поки що не йти.

наявність проекту відіб'є наїзди жеку, навряд вони будуть позиватися, знаючи що є офіц. проект.


Роздрукувати   Нагадати!   Сповістити модератора   Відправити по E-mail
старый гоблин **
50 лет (24 года за рулем), Киев
Сообщения: 7284
С нами с 01.06.2011

Re: Перенести дверной проем [Re: ]
      20 декабря 2011 в 11:45 Гілками

Vov4 20.12.2011 11:36 пишет:

почни з проекту.
якщо архітектори погодяться поставити свою печатку то далі офіц. шляхом можна поки що не йти.

наявність проекту відіб'є наїзди жеку, навряд вони будуть позиватися, знаючи що є офіц. проект.




Дякую за пораду. Це до районного треба йти? Я просто вже давно цим не займаюсь - тому не дуже зараз орієнтуюсь.


Роздрукувати   Нагадати!   Сповістити модератора   Відправити по E-mail
СуперСтар ***
29 лет за рулем, Киев
Сообщения: 5941
С нами с 19.02.2008

Re: Перенести дверной проем [Re: Энгри]
      20 декабря 2011 в 11:49 Гілками

Я переносил на 20 см. Входная группа.
Проект т-134.
Без согласований


Роздрукувати   Нагадати!   Сповістити модератора   Відправити по E-mail
spd
IesuiT **
36 лет за рулем, Киев
Сообщения: 38264
С нами с 01.10.2005

Re: Перенести дверной проем [Re: ]
      20 декабря 2011 в 11:51 Гілками

В ответ на:

наявність проекту відіб'є наїзди жеку, навряд вони будуть позиватися, знаючи що є офіц. проект



Это будет называться "в процессе согласования". Технарей, которые печать поставят, юридическая сторона вопроса не волнует. А еще соседи могут возражать, несущая конструкция - общая собственность. В общем, такую реконструкцию лучше и с технической, и с юридической стороны согласовывать.


Роздрукувати   Нагадати!   Сповістити модератора   Відправити по E-mail
deleted
Анонім
Сообщения:
С нами с

Re: Перенести дверной проем [Re: Энгри]
      20 декабря 2011 в 11:54 Гілками

С. Дали 20.12.2011 11:45 пишет:


Дякую за пораду. Це до районного треба йти? Я просто вже давно цим не займаюсь - тому не дуже зараз орієнтуюсь.




я теж вже не дуже пам'ятаю.
організація проектувальник точно таке може. Теоретично будинок типовий і будь-яке офіційне арх. бюро, мабуть, може зробити проект, але точно не пам'ятаю.


Роздрукувати   Нагадати!   Сповістити модератора   Відправити по E-mail
deleted
Анонім
Сообщения:
С нами с

Re: Перенести дверной проем [Re: spd]
      20 декабря 2011 в 11:56 Гілками

spd 20.12.2011 11:51 пишет:

В общем, такую реконструкцию лучше и с технической, и с юридической стороны согласовывать.




якщо технічно буде оформлено, то сусіди навряд будуть смикатись. ну звісні, з сусідами прийдеться спокійно і чемно розмовляти і пояснювати.
а з жеку не зреагують, якщо скарг від сусідів не буде.

Змінено Vov4 (11:57 20/12/2011)


Роздрукувати   Нагадати!   Сповістити модератора   Відправити по E-mail
Сообщения: 58388
С нами с 03.09.2001

Re: Перенести дверной проем [Re: ]
      20 декабря 2011 в 12:15 Гілками

Vov4 20.12.2011 11:56 пишет:

spd 20.12.2011 11:51 пишет:

В общем, такую реконструкцию лучше и с технической, и с юридической стороны согласовывать.




якщо технічно буде оформлено, то сусіди навряд будуть смикатись. ну звісні, з сусідами прийдеться спокійно і чемно розмовляти і пояснювати.



Тануладно, в наше-то дикое время? Ну представь, сидишь ты дома, а тут приходит к тебе какой-то тип сомнительной наружности и начинает спрашивать а не против ли ты шоп его нетрезвые джамшуты тут чуть-чуть несущую стену попилили. Не, ну скажи, ты вправду посмотришь на мятую бумажку с проектом и печатью какой-то неизвестной тебе организации в углу, и скажешь "пилите на здоровье", и ни на секунду не усомнишься? Сходу поверишь, шо ота организация внатуре шо-та там архитектурила, и шо ота печать не за сало получена?


Роздрукувати   Нагадати!   Сповістити модератора   Відправити по E-mail
spd
IesuiT **
36 лет за рулем, Киев
Сообщения: 38264
С нами с 01.10.2005

Re: Перенести дверной проем [Re: ]
      20 декабря 2011 в 12:28 Гілками

В ответ на:

якщо технічно буде оформлено


Видел лично такие типа проекты с прямоугольным штампом коммунальной какой-то конторы и даже с печатью частной лавки. Шо хошь тебе напишут. Только там еще должна быть на каком-то этапе строительная экспертиза и т.п. А госструктуры вроде как предпочитают проверенные организации: Киевпроект, Институт судэкспертизы и т.п.

Роздрукувати   Нагадати!   Сповістити модератора   Відправити по E-mail
Autoua.netФорумБудівництво та ремонт нерухомості
Додаткова інформація
0 користувачів і 12 що побажали залишитися невідомими читають цей форум.

Модератор:  moderator, Outdriver 

Роздрукувати всю тему

Права
      Ви не можете створювати нові теми
      Ви не можете відповідати на повідомлення
      HTML дозволений
      UBBCode дозволений

Рейтинг:
Переглядів теми: 5034

Оціните цю тему

Перейти в

Правила конференції | Календар | FAQ | Карта розділу | Мобільна версія