autoua
×
Autoua.netФорумВирішення побутових проблем

Надо сделать кухню (эскиз внутри)

старый писатель **
Krc
Сообщения: 975
С нами с 30.05.2005

Надо сделать кухню (эскиз внутри)
      30 сентября 2012 в 20:15 Гілками Прикріплені файли (0 завантажити)

Всем привет

Ищу мастеров, которые сделают в сроки кухню. Все детали обсуждаются как в большую так и в меньшую сторону, как по бюджету так и по материалам

Всем приветИщу мастеров, которые сделают в сроки кухню. Все детали обсуждаются как в большую так и в меньшую сторону, как по бюджету так и по материалам


Роздрукувати   Нагадати!   Сповістити модератора   Відправити по E-mail
подсевший на форум **
9 лет (29 лет за рулем), Киев
Сообщения: 23274
С нами с 11.04.2003

Re: Надо сделать кухню (эскиз внутри) [Re: Lime]
      30 сентября 2012 в 20:44 Гілками

Подобное заказывала тут
http://idea-trading.ua/production/
По срокам и качеству никаких претензий


Роздрукувати   Нагадати!   Сповістити модератора   Відправити по E-mail
Супер писатель! **
48 лет (33 года за рулем), Киев
Сообщения: 2912
С нами с 04.10.2004

Re: Надо сделать кухню (эскиз внутри) [Re: Lime]
      30 сентября 2012 в 22:29 Гілками

В личке.

Роздрукувати   Нагадати!   Сповістити модератора   Відправити по E-mail
старый писатель **
Krc
Сообщения: 975
С нами с 30.05.2005

Re: Надо сделать кухню (эскиз внутри) [Re: Lime]
      2 октября 2012 в 22:41 Гілками Прикріплені файли (0 завантажити)

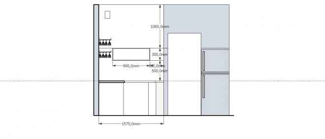
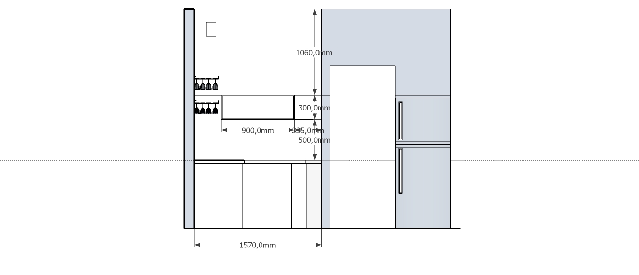
Размеры 1

Размеры 1


Роздрукувати   Нагадати!   Сповістити модератора   Відправити по E-mail
старый писатель **
Krc
Сообщения: 975
С нами с 30.05.2005

Re: Надо сделать кухню (эскиз внутри) [Re: Lime]
      2 октября 2012 в 22:41 Гілками Прикріплені файли (0 завантажити)

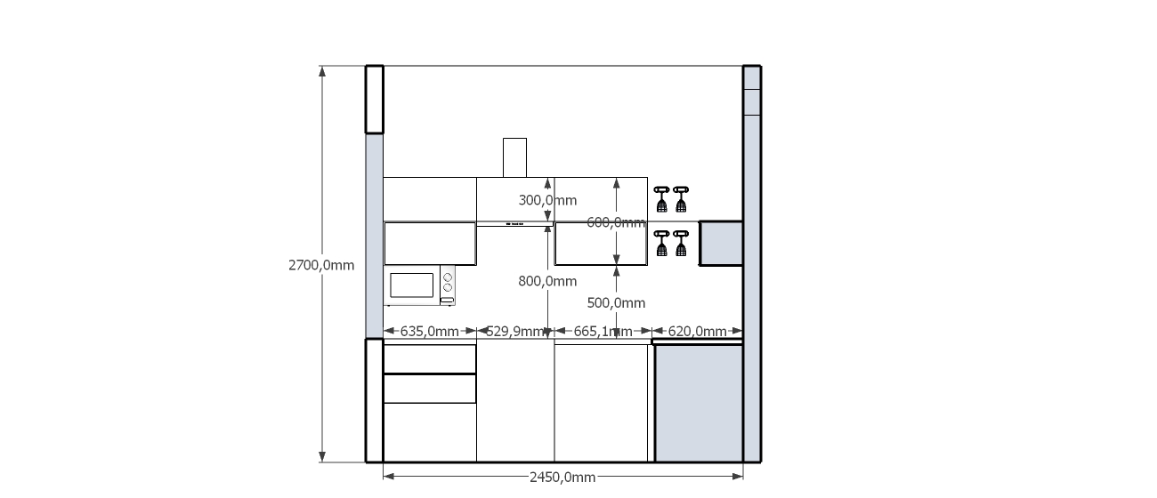
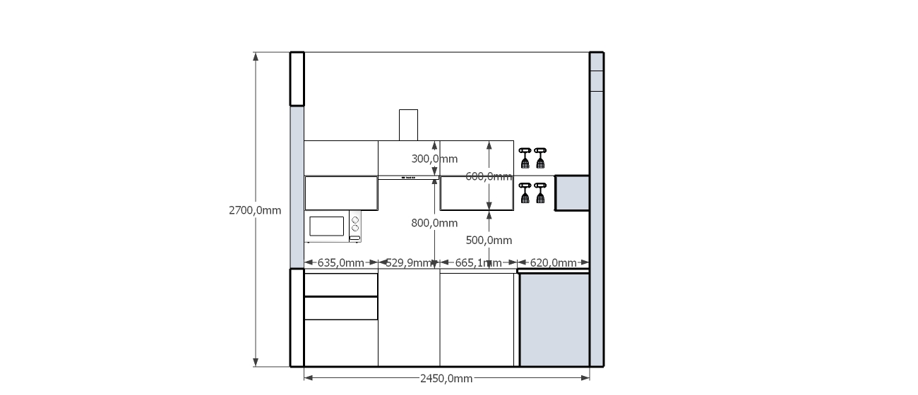
Размеры 2

Размеры 2


Роздрукувати   Нагадати!   Сповістити модератора   Відправити по E-mail
старый писатель **
Krc
Сообщения: 975
С нами с 30.05.2005

Re: Надо сделать кухню (эскиз внутри) [Re: Lime]
      2 октября 2012 в 22:42 Гілками

Материалы МДФ, все остальное наверное надо приехать и пообщаться

Роздрукувати   Нагадати!   Сповістити модератора   Відправити по E-mail
старый писатель **
Krc
Сообщения: 975
С нами с 30.05.2005

Re: Надо сделать кухню (эскиз внутри) [Re: Lime]
      9 октября 2012 в 00:09 Гілками Прикріплені файли (0 завантажити)

Поиски исполнителей продолжаются, странно что никто не откликнулся

Поиски исполнителей продолжаются, странно что никто не откликнулся


Роздрукувати   Нагадати!   Сповістити модератора   Відправити по E-mail
ОООО **
Киев
Сообщения: 11836
С нами с 05.07.2001

Re: Надо сделать кухню (эскиз внутри) [Re: Lime]
      9 октября 2012 в 00:28 Гілками

Роману "автосервис" стукни в личку)
остался доволен сотрудничеством с ним и не я один такой, судя по отзывам на форуме)


Роздрукувати   Нагадати!   Сповістити модератора   Відправити по E-mail
Информированный оптимист **
43 года (18 лет за рулем), Киев
Сообщения: 12207
С нами с 01.10.2008

Re: Надо сделать кухню (эскиз внутри) [Re: Lime]
      9 октября 2012 в 13:11 Гілками

Сорри за оффтоп... А чем ты рисовал-просчитывал кухную? А то мине тоже нада ))

Роздрукувати   Нагадати!   Сповістити модератора   Відправити по E-mail
старый писатель **
Krc
Сообщения: 975
С нами с 30.05.2005

Re: Надо сделать кухню (эскиз внутри) [Re: keshik]
      9 октября 2012 в 13:13 Гілками

keshik 09.10.2012 13:11 пишет:

Сорри за оффтоп... А чем ты рисовал-просчитывал кухную? А то мине тоже нада ))




http://sketchup.google.com


Роздрукувати   Нагадати!   Сповістити модератора   Відправити по E-mail
важничающий писатель **
23 года за рулем, Киев
Сообщения: 1873
С нами с 11.01.2009

Re: Надо сделать кухню (эскиз внутри) [Re: Lime]
      9 октября 2012 в 14:42 Гілками

все ИМХО
эскиз и проект неправильные.
этот секас никто делать не хочет.

сорри.


Роздрукувати   Нагадати!   Сповістити модератора   Відправити по E-mail
старый писатель **
Krc
Сообщения: 975
С нами с 30.05.2005

Re: Надо сделать кухню (эскиз внутри) [Re: Итальянец]
      9 октября 2012 в 14:47 Гілками

Итальянец 09.10.2012 14:42 пишет:

все ИМХО
эскиз и проект неправильные.
этот секас никто делать не хочет.

сорри.



А в что не правильно объясните, с удовольствием выслушаю критику?
Есть нормальные размеры, Тут все сделано для наглядности.



Змінено Lime (14:48 09/10/2012)


Роздрукувати   Нагадати!   Сповістити модератора   Відправити по E-mail
V.I.P **
22 года за рулем, Киев
Сообщения: 19019
С нами с 21.05.2008

Re: Надо сделать кухню (эскиз внутри) [Re: Итальянец]
      9 октября 2012 в 14:58 Гілками

Итальянец 09.10.2012 14:42 пишет:

все ИМХО
эскиз и проект неправильные.
этот секас никто делать не хочет.

сорри.



Почему?
У меня очень похожая кухня, сделанная пару месяцев назад.
Об особых сложностях никто не говорил.


Роздрукувати   Нагадати!   Сповістити модератора   Відправити по E-mail
Достоевский **
Киев
Сообщения: 8486
С нами с 14.07.2004

Re: Надо сделать кухню (эскиз внутри) [Re: Lime]
      9 октября 2012 в 21:18 Гілками

Быть может то, что некоторые размеры с десятыми милиметра указаны как я понимаю, это издержки автоматизации, выдерживать такую точно не нужно. А так, ничего особого нет. Имхо, даже проще так, точно понятно, что надо заказчику. Но на месте все равно мерять надо, бывает стены не точно под 90 градусов идут и т.п.

Я когда кухню заказывал, мастер был достаточно загружен, одной больше/меньше как-то ему погоды не делало. Да и заказ тут небольшой, может поэтому особого интереса не наблюдается.


Роздрукувати   Нагадати!   Сповістити модератора   Відправити по E-mail
старый писатель **
Krc
Сообщения: 975
С нами с 30.05.2005

Re: Надо сделать кухню (эскиз внутри) [Re: Нафаня]
      9 октября 2012 в 21:24 Гілками

Бомж 09.10.2012 21:18 пишет:

Быть может то, что некоторые размеры с десятыми милиметра указаны как я понимаю, это издержки автоматизации, выдерживать такую точно не нужно. А так, ничего особого нет. Имхо, даже проще так, точно понятно, что надо заказчику. Но на месте все равно мерять надо, бывает стены не точно под 90 градусов идут и т.п.

Я когда кухню заказывал, мастер был достаточно загружен, одной больше/меньше как-то ему погоды не делало. Да и заказ тут небольшой, может поэтому особого интереса не наблюдается.



С учетом фасадов пластик в алюминии и желанием использовать blum - заказ свои 15-20 кГрн потянет, ну судя по всему это не та цена для Киева

Змінено Lime (21:25 09/10/2012)


Роздрукувати   Нагадати!   Сповістити модератора   Відправити по E-mail
Супер писатель! **
Киев
Сообщения: 3232
С нами с 26.07.2008

Re: Надо сделать кухню (эскиз внутри) [Re: Lime]
      9 октября 2012 в 22:33 Гілками

Lime 09.10.2012 13:13 пишет:

keshik 09.10.2012 13:11 пишет:

Сорри за оффтоп... А чем ты рисовал-просчитывал кухную? А то мине тоже нада ))




http://sketchup.google.com



А я свою в Инвенторе моделировал. Во как вышло.

Заказывать буду в Эпицентре и дорабатывать напильником чтоб впихнуть невпихуемое, а то помещение слегка нестандартное.

Змінено SARS (22:34 09/10/2012)


Роздрукувати   Нагадати!   Сповістити модератора   Відправити по E-mail
аццкая сотона **
27 лет за рулем, нижня Європа
Сообщения: 18085
С нами с 23.04.2007

Re: Надо сделать кухню (эскиз внутри) [Re: Lime]
      10 октября 2012 в 09:42 Гілками

Lime 30.09.2012 20:15 пишет:

Всем привет

Ищу мастеров, которые сделают в сроки кухню. Все детали обсуждаются как в большую так и в меньшую сторону, как по бюджету так и по материалам




очень похоже на серию KT-16


Роздрукувати   Нагадати!   Сповістити модератора   Відправити по E-mail
супер-агент **
Киев
Сообщения: 10188
С нами с 11.01.2002

Re: Надо сделать кухню (эскиз внутри) [Re: Lime]
      11 октября 2012 в 16:34 Гілками

свяжись с Костей

Роздрукувати   Нагадати!   Сповістити модератора   Відправити по E-mail
читатель
Сообщения: 1
С нами с 16.10.2012

Re: Надо сделать кухню (эскиз внутри) [Re: Lime]
      16 октября 2012 в 19:10 Гілками

Кухню уже заказали?
если нет звоните 063 2333015


Роздрукувати   Нагадати!   Сповістити модератора   Відправити по E-mail
Autoua.netФорумВирішення побутових проблем
Додаткова інформація
1 користувачів і 32 що побажали залишитися невідомими читають цей форум.

Модератор:  AlMat, doctor_b, moderator, Outdriver 

Роздрукувати всю тему

Права
      Ви не можете створювати нові теми
      Ви не можете відповідати на повідомлення
      HTML дозволений
      UBBCode дозволений

Рейтинг:
Переглядів теми: 4593

Оціните цю тему

Перейти в

Правила конференції | Календар | FAQ | Карта розділу | Мобільна версія