autoua
×
Autoua.netФорумВирішення побутових проблем

Подскажите пожалуйста по замерам БТИ

подмастерье ****
Киев
Сообщения: 80
С нами с 02.10.2008

Подскажите пожалуйста по замерам БТИ
      23 января 2013 в 13:22 Гілками Прикріплені файли (0 завантажити)

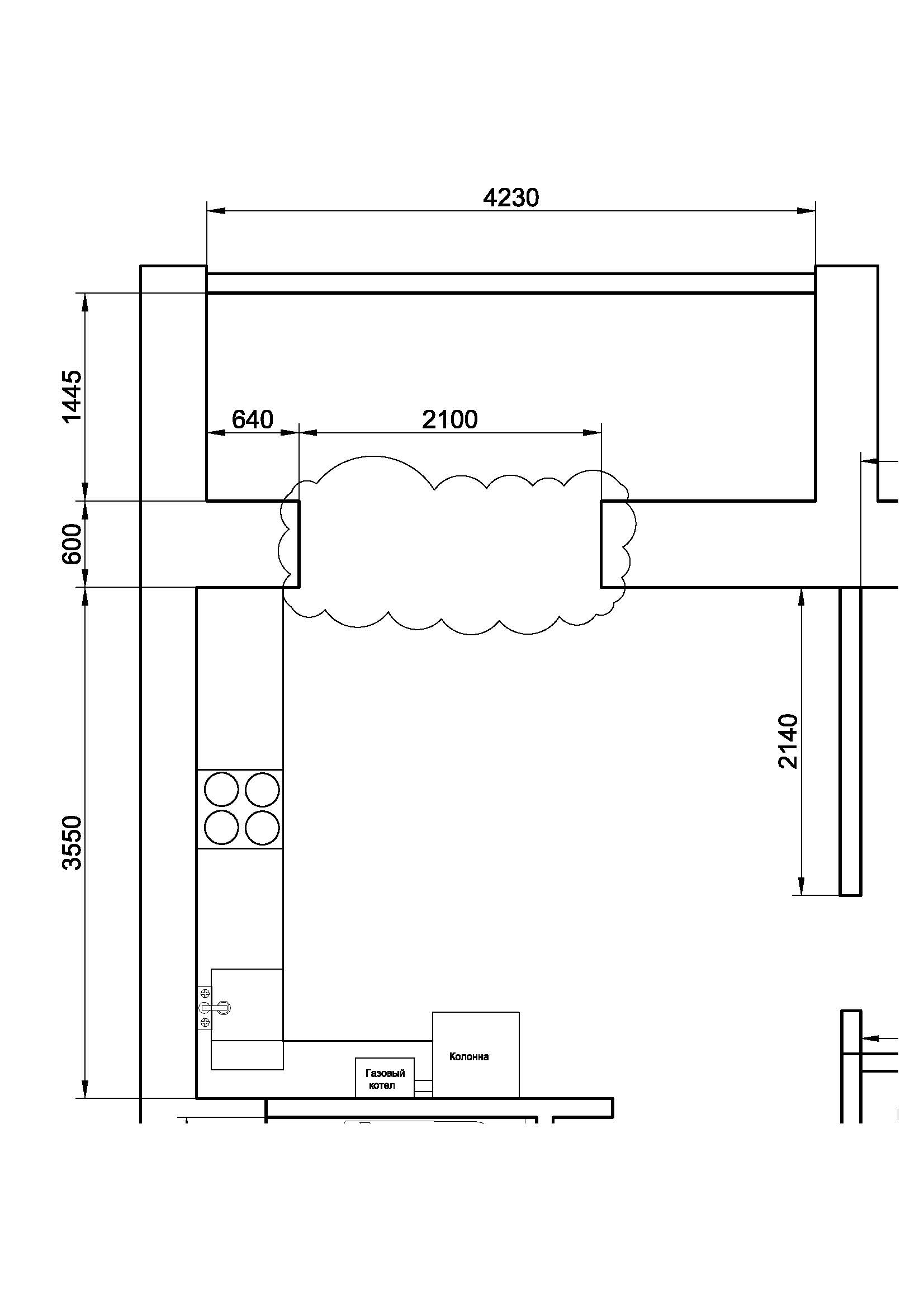
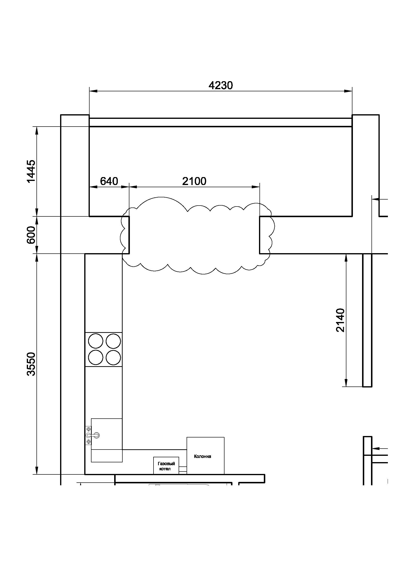
Вопрос в следующем: имеется квартира в новострое, по проекту лоджия шла с балконным блоком (окном и дверью) и с коэффициентом уменьшения для лоджии к=0,5, а по факту построил без блока и поставил на лоджии батарею соответственно коэффициент поменялся к=1, подскажите пожалуйста учитывается ли при подсчете площади проем (выделен облаком) который образовался вместо балконного блока?

Вопрос в следующем: имеется квартира в новострое, по проекту лоджия шла с балконным блоком (окном и дверью) и с коэффициентом уменьшения для лоджии к=0,5, а по факту построил без блока и поставил на лоджии батарею соответственно коэффициент поменялся к=1, подскажите пожалуйста учитывается ли при подсчете площади проем (выделен облаком) который образовался вместо балконного блока.


Роздрукувати   Нагадати!   Сповістити модератора   Відправити по E-mail
старый писатель *
Киев
Сообщения: 783
С нами с 01.11.2005

Re: Подскажите пожалуйста по замерам БТИ [Re: Leco]
      23 января 2013 в 13:34 Гілками

Да.

Роздрукувати   Нагадати!   Сповістити модератора   Відправити по E-mail
Autoua.netФорумВирішення побутових проблем
Додаткова інформація
1 користувачів і 109 що побажали залишитися невідомими читають цей форум.

Модератор:  AlMat, doctor_b, moderator, Outdriver 

Роздрукувати всю тему

Права
      Ви не можете створювати нові теми
      Ви не можете відповідати на повідомлення
      HTML дозволений
      UBBCode дозволений

Рейтинг:
Переглядів теми: 3061

Оціните цю тему

Перейти в

Правила конференції | Календар | FAQ | Карта розділу | Мобільна версія