autoua
×
Autoua.netФорумБудівництво та ремонт нерухомості

Пристройка к дому - фундамент.

опытный писатель **
42 года (20 лет за рулем), Умань
Сообщения: 1309
С нами с 02.04.2012

Пристройка к дому - фундамент.
      14 июля 2015 в 21:58 Гілками Прикріплені файли (0 завантажити)

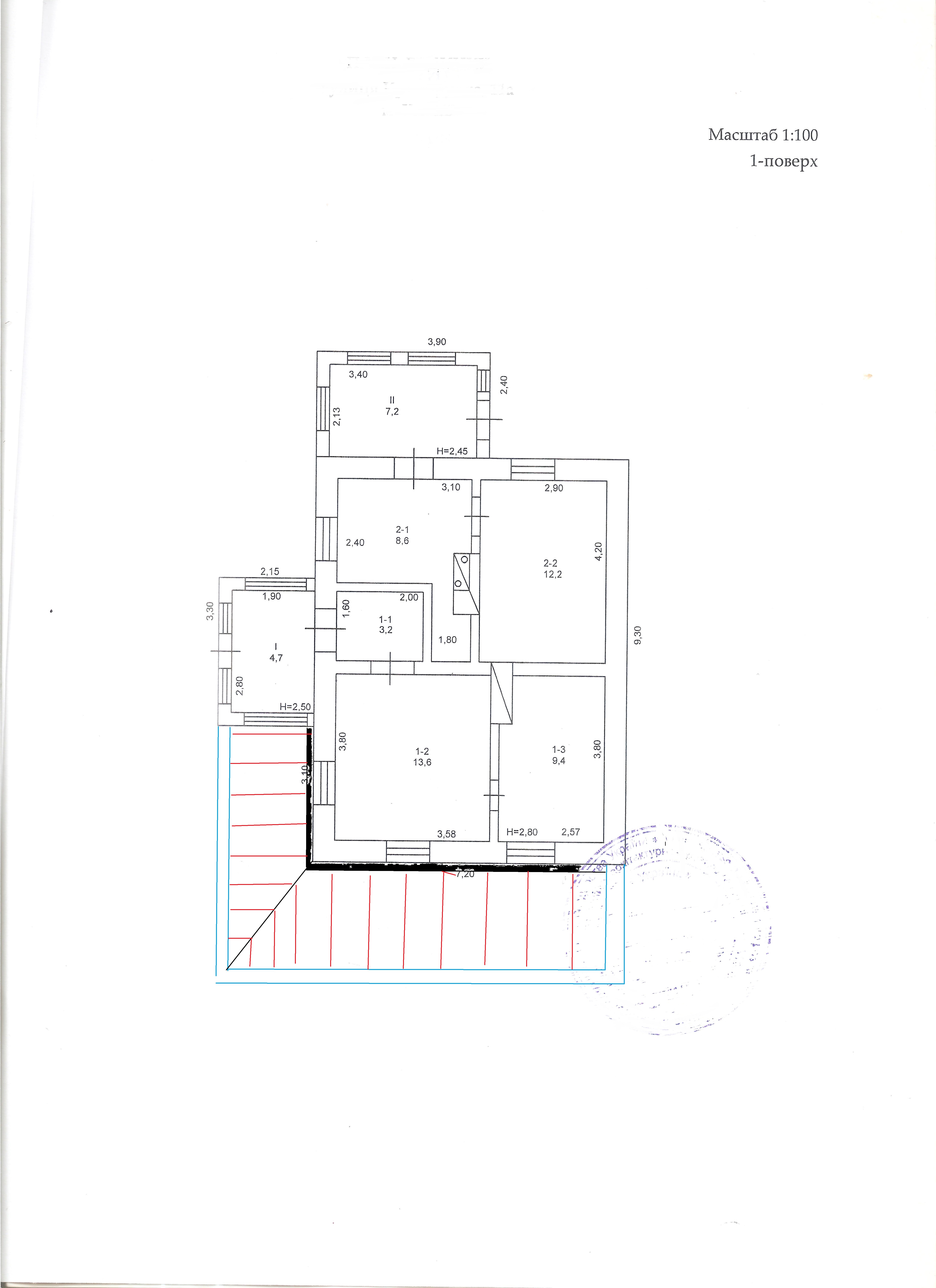
Есть такой домик (гв 1970+), планируется вот такая пристройка. Вопрос по фундаменту. Заливать новый, связав его со существующим (старым) фундаментом, или делать отдельным, то есть с деформационным швом? Тоже самое с коробкой. Сверлить дыры и связывать арматурой или отдельно? Спасибо!

Есть такой домик (гв 1970+), планируется вот такая пристройка.  Вопрос по фундаменту


Роздрукувати   Нагадати!   Сповістити модератора   Відправити по E-mail
Достоевский ****
Черкассы
Сообщения: 6362
С нами с 29.06.2005

Re: Пристройка к дому - фундамент. [Re: Olegof]
      16 июля 2015 в 13:23 Гілками

Примыкание фундаментов - баян - тут 100 раз обсуждалось. Народные поверья - про связывание и арматуру - неправильные. Коротко - новый фундамент будет "тонуть" быстрее старого, "связанный " конец будет висеть, т.е. вместо ленточного фундамента получаете ригель с риском поиметь трещину в любом месте.
Правильно - делать подвижный эластичный шов, маскировать снаружи. Глубина и отступ старый/новый также важны.


Роздрукувати   Нагадати!   Сповістити модератора   Відправити по E-mail
опытный писатель **
42 года (20 лет за рулем), Умань
Сообщения: 1309
С нами с 02.04.2012

Re: Пристройка к дому - фундамент. [Re: AZC_]
      16 июля 2015 в 20:02 Гілками

AZC_ 16.07.2015 13:23 пишет:

Примыкание фундаментов - баян - тут 100 раз обсуждалось. Народные поверья - про связывание и арматуру - неправильные. Коротко - новый фундамент будет "тонуть" быстрее старого, "связанный " конец будет висеть, т.е. вместо ленточного фундамента получаете ригель с риском поиметь трещину в любом месте.
Правильно - делать подвижный эластичный шов, маскировать снаружи. Глубина и отступ старый/новый также важны.


Можете объяснить кратко? Буду благодарен!

Роздрукувати   Нагадати!   Сповістити модератора   Відправити по E-mail
Достоевский ****
Черкассы
Сообщения: 6362
С нами с 29.06.2005

Re: Пристройка к дому - фундамент. [Re: Olegof]
      17 июля 2015 в 00:55 Гілками

Если новый/старый фундамент в одном уровне (т.е. одинаковая глубина), то взаимное влияние можно не учитывать и ставить их вплотную. Если глубина разная, то могут быть эффекты, и на то есть нормы/правила/методы. Простой прием для разных глубин - ступенчатый фундамент.
Например заметка

По всей высоте обеспечить деформационный шов. По простому - оставить щель, задуть пеной и закрыть изнутри снаружи декоративной планкой. Пусть плавает как хочет. Можна набить ваты, применять ПСУЛ, и т.д. Планки (м.б. уголки) - свобода творчества.


Роздрукувати   Нагадати!   Сповістити модератора   Відправити по E-mail
опытный писатель **
55 лет, Киев
Сообщения: 1429
С нами с 03.09.2002

Re: Пристройка к дому - фундамент. [Re: AZC_]
      17 июля 2015 в 17:09 Гілками

=По всей высоте обеспечить деформационный шов=
А прилегание стен,крыши ?


Дом 1960г. пристройка (веранда)1980.
Купили дом в 2005 , веранда "уплывала".
Домкратили и сшивали скобами .
Потом переделывали (подливали) фундамент.


Роздрукувати   Нагадати!   Сповістити модератора   Відправити по E-mail
Супер писатель! *
49 лет, Киев
Сообщения: 2615
С нами с 14.10.2012

Re: Пристройка к дому - фундамент. [Re: Olegof]
      17 июля 2015 в 17:18 Гілками

Можно сделать и без деф швов.... за счет той же арматуры и бетона

Роздрукувати   Нагадати!   Сповістити модератора   Відправити по E-mail
СуперСтар ***
Киев
Сообщения: 4166
С нами с 02.10.2008

Re: Пристройка к дому - фундамент. [Re: Olegof]
      17 июля 2015 в 17:59 Гілками

Только дефшов. Никаких жестких не может быть в принципе.

Деформации от нагрузок, как выше правильно заметили, в жестком соединении будут скомпенсированны только разрывом старого дома. То же самое и с фундаментом.


Дефшвы лучше сделать спец. лентой, всю поверхность присоединения пройти чем-то типа минваты или ЭППС.

По фундаментам - конструктив, одинаковый с существующим. С припуском на усадку по формуле сжатия грунтов.

Плюс, продумайте конфигурацию кровли на пристройке. Обязательно решить с отведением воды. До того, как саму её проектировать.


Роздрукувати   Нагадати!   Сповістити модератора   Відправити по E-mail
опытный писатель **
42 года (20 лет за рулем), Умань
Сообщения: 1309
С нами с 02.04.2012

Re: Пристройка к дому - фундамент. [Re: Светлячоk]
      18 июля 2015 в 16:23 Гілками

Светлячоk 17.07.2015 17:59 пишет:

Только дефшов. Никаких жестких не может быть в принципе.

Деформации от нагрузок, как выше правильно заметили, в жестком соединении будут скомпенсированны только разрывом старого дома. То же самое и с фундаментом.


Дефшвы лучше сделать спец. лентой, всю поверхность присоединения пройти чем-то типа минваты или ЭППС.

По фундаментам - конструктив, одинаковый с существующим. С припуском на усадку по формуле сжатия грунтов.

Плюс, продумайте конфигурацию кровли на пристройке. Обязательно решить с отведением воды. До того, как саму её проектировать.


Имеете ввиду канализационные трубы итд?

Роздрукувати   Нагадати!   Сповістити модератора   Відправити по E-mail
СуперСтар ***
Киев
Сообщения: 4166
С нами с 02.10.2008

Re: Пристройка к дому - фундамент. [Re: Olegof]
      18 июля 2015 в 16:41 Гілками

Это само собой,

Тут имела ввиду ливневку, отведение воды от отмостки, особенно в районе примыканий. И внимание к примыканию кровли


Роздрукувати   Нагадати!   Сповістити модератора   Відправити по E-mail
VWW
важничающий писатель *
48 лет за рулем, Белая Церковь
Сообщения: 1728
С нами с 26.04.2015

Re: Пристройка к дому - фундамент. [Re: Светлячоk]
      18 июля 2015 в 18:38 Гілками

В ответ на:

По всей высоте обеспечить деформационный шов. По простому - оставить щель, задуть пеной и закрыть изнутри снаружи декоративной планкой. Пусть плавает как хочет. Можна набить ваты, применять ПСУЛ, и т.д. Планки (м.б. уголки) - свобода творчества.




А как утеплять подобную конструкцию (дом и пристройку ) пенопластом ? Ведь будет рвать пенопласт на стенах -в местах соединения старого и нового фундамента. Или я ошибаюсь?

Змінено VWW (18:39 18/07/2015)


Роздрукувати   Нагадати!   Сповістити модератора   Відправити по E-mail
СуперСтар ***
Киев
Сообщения: 4166
С нами с 02.10.2008

Re: Пристройка к дому - фундамент. [Re: VWW]
      18 июля 2015 в 19:57 Гілками

VWW 18.07.2015 18:38 пишет:

В ответ на:

По всей высоте обеспечить деформационный шов. По простому - оставить щель, задуть пеной и закрыть изнутри снаружи декоративной планкой. Пусть плавает как хочет. Можна набить ваты, применять ПСУЛ, и т.д. Планки (м.б. уголки) - свобода творчества.




А как утеплять подобную конструкцию (дом и пристройку ) пенопластом ? Ведь будет рвать пенопласт на стенах -в местах соединения старого и нового фундамента. Или я ошибаюсь?




в смысле? между стеной существующего дома и пристраиваемой конструкций остается зазор в 2-3 см,
существующая поверхность стены проклеивается утеплителем (МВП или ЭППС и т.д.) - если там еще нет его), и к ней пристраивается стена нового здания. Зазоры на фасадных частях проходятся герметиком, возможно, шнуром, и закрываются спецшвом - планками,
или просто накладками






Движение конструкций происходит в своих плоскостях, хоть и ограниченное взаимным расположением. Обеспечить при этом герметичность стыков, отвести воду, как уже говорилось, и создать замкнутый контур теплоизоляции, избежав в этом месте мостика.

Змінено Светлячоk (20:17 18/07/2015)


Роздрукувати   Нагадати!   Сповістити модератора   Відправити по E-mail
опытный писатель **
42 года (20 лет за рулем), Умань
Сообщения: 1309
С нами с 02.04.2012

Re: Пристройка к дому - фундамент. [Re: Светлячоk]
      18 июля 2015 в 20:26 Гілками Прикріплені файли (0 завантажити)

Планировал сделать "жёсткое" примыкание новой крыши к старой стене, новую крышу завести под старую, получается, что нельзя. Какие могут быть варианты?

Планировал сделать "жёсткое" примыкание новой крыши к старой стене,  новую крышу завести под старую, получается, что нельзя. Какие могут быть варианты

Змінено Olegof (20:36 18/07/2015)


Роздрукувати   Нагадати!   Сповістити модератора   Відправити по E-mail
СуперСтар ***
Киев
Сообщения: 4166
С нами с 02.10.2008

Re: Пристройка к дому - фундамент. [Re: Olegof]
      18 июля 2015 в 23:48 Гілками

ну, в этих вопросах Я всегда нудю - обратитесь к специалисту приучена к подходу ничего без расчета проектировщиков не делать на стройплощадке
тем более это ж надо будет ввести в эксплуатацию

Примыкание через дефшов не противоречит вобщем соединению в районе кровли, просто нужны расчеты и правильные узлы. по кровле, уклоны, посчитать снег, предусмотреть водоотвод

Есть много тем на том же строимдом, есть основные ДБНы по нагрузкам, всякие геологии, и есть Ваш бюджет

С П-контуром, или с анкерами, или с траблами в кровельных примыканиях, риск получить треснутые стены и замокшие углы.

Потому пункт в бюджете на расчет конструктива - это имхо рационально, оптимальная конфигурация это сохранение в будущем

Зы. А что с инсоляцией в этой части? Много окон уходит

Змінено Светлячоk (23:57 18/07/2015)


Роздрукувати   Нагадати!   Сповістити модератора   Відправити по E-mail
PBR
старый писатель ***
47 лет (29 лет за рулем), Чернигов
Сообщения: 743
С нами с 13.01.2014

Re: Пристройка к дому - фундамент. [Re: Olegof]
      19 июля 2015 в 00:56 Гілками

Olegof 18.07.2015 20:26 пишет:

Планировал сделать "жёсткое" примыкание новой крыши к старой стене, новую крышу завести под старую, получается, что нельзя. Какие могут быть варианты?



Ну почему же нельзя?

Если по порядку снизу вверх:

1) действительно, при пристраивании дополнительного объема необходимо устройство т.н. осадочного (деформационного) шва, который должен разрезать фундаменты и вышележащие конструкции. Но если говорить о реальной осадке этой пристройки, то, при соблюдении требований по уплотнению грунта под подошвой и правильно рассчитанной ширине подошвы фундамента, ее величина будет мизерная и к моменту окончания возведения стен основная ее часть уже будет выбрана. Конечно, крыша и нагрузки на нее кое-что добавят, но несущественно.

2) по материалам в деф. шве: сейчас чаще всего в качестве заполнителя применяется экструдированный пенополистирол. По материалам для герметизации есть масса вариантов в зависимости от назначения.Например, специальные мастики, которые после нанесения сохраняют свою эластичность.

3) способ крепления стропил на существующую стену будет зависеть от того, из чего она построена и в каком она состоянии. В общем случае это дер. балка, зафиксированная на стене при помощи анкеров и на которую потом опираются стропила крыши. Податливость гвоздевых соединений обеспечит восприятие возможных деформаций стропил. Поэтому ничего страшного в опирании на старую стену нет.


Роздрукувати   Нагадати!   Сповістити модератора   Відправити по E-mail
VWW
важничающий писатель *
48 лет за рулем, Белая Церковь
Сообщения: 1728
С нами с 26.04.2015

Re: Пристройка к дому - фундамент. [Re: Светлячоk]
      19 июля 2015 в 11:45 Гілками Прикріплені файли (0 завантажити)

Светлячоk 18.07.2015 19:57 пишет:

VWW 18.07.2015 18:38 пишет:

В ответ на:

По всей высоте обеспечить деформационный шов. По простому - оставить щель, задуть пеной и закрыть изнутри снаружи декоративной планкой. Пусть плавает как хочет. Можна набить ваты, применять ПСУЛ, и т.д. Планки (м.б. уголки) - свобода творчества.




А как утеплять подобную конструкцию (дом и пристройку ) пенопластом ? Ведь будет рвать пенопласт на стенах -в местах соединения старого и нового фундамента. Или я ошибаюсь?




в смысле? между стеной существующего дома и пристраиваемой конструкций остается зазор в 2-3



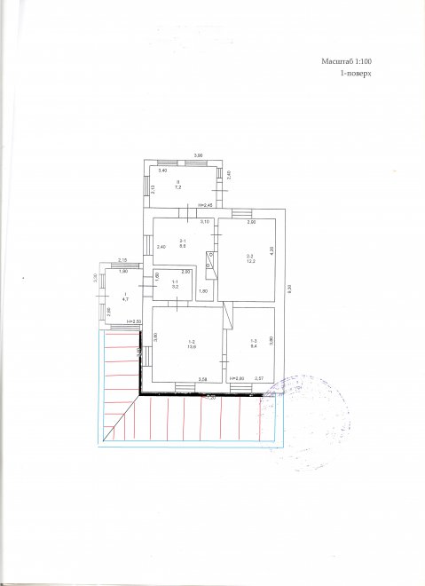
В прямом -на рис красным листы пенопласта, синим место где пенопласт будет рвать при усадке пристройки.

В прямом -на рис красным листы пенопласта, синим место где пенопласт будет рвать при усадке пристройки.


Роздрукувати   Нагадати!   Сповістити модератора   Відправити по E-mail
опытный писатель **
42 года (20 лет за рулем), Умань
Сообщения: 1309
С нами с 02.04.2012

Re: Пристройка к дому - фундамент. [Re: Светлячоk]
      19 июля 2015 в 11:58 Гілками

Светлячоk 18.07.2015 23:48 пишет:

ну, в этих вопросах Я всегда нудю - обратитесь к специалисту приучена к подходу ничего без расчета проектировщиков не делать на стройплощадке
тем более это ж надо будет ввести в эксплуатацию

Примыкание через дефшов не противоречит вобщем соединению в районе кровли, просто нужны расчеты и правильные узлы. по кровле, уклоны, посчитать снег, предусмотреть водоотвод

Есть много тем на том же строимдом, есть основные ДБНы по нагрузкам, всякие геологии, и есть Ваш бюджет

С П-контуром, или с анкерами, или с траблами в кровельных примыканиях, риск получить треснутые стены и замокшие углы.

Потому пункт в бюджете на расчет конструктива - это имхо рационально, оптимальная конфигурация это сохранение в будущем

Зы. А что с инсоляцией в этой части? Много окон уходит


Да, 2 окна закрываются, из третьего окна будут межкомнатные двери. Но, будут 2 новых окна с солнечной стороны, если смотреть на план с права (прорубим стену). Само собой будут окна в возведённой пристройке (кухня, с/у, комната). Иначе, пока никак.

Роздрукувати   Нагадати!   Сповістити модератора   Відправити по E-mail
СуперСтар ***
Киев
Сообщения: 4166
С нами с 02.10.2008

Re: Пристройка к дому - фундамент. [Re: VWW]
      19 июля 2015 в 12:14 Гілками

Нет, на узле планка поверх всего пирожка стены, включая утеплитель - соединения ни в каком слое стены со старой не производится, две независимые конструкции, пристройка на своем замкнутом контуре фундамента.
планка позволяет некоторый ход, но ее назначение более защищать герметик и декоративное.


Роздрукувати   Нагадати!   Сповістити модератора   Відправити по E-mail
читатель
Сообщения: 6
С нами с 03.07.2015

Re: Пристройка к дому - фундамент. [Re: Светлячоk]
      4 августа 2015 в 23:08 Гілками

Да! Это сложно сделать идеально. У нас поехала такая пристройка. Правда делали не мы, и лет 30-40 назад. Но тем не менее случилось все так, как тут описано. ленточный фундамент неидеален. Хорош только, когда заново закладываешь.

Роздрукувати   Нагадати!   Сповістити модератора   Відправити по E-mail
Autoua.netФорумБудівництво та ремонт нерухомості
Додаткова інформація
0 користувачів і 32 що побажали залишитися невідомими читають цей форум.

Модератор:  moderator, Outdriver 

Роздрукувати всю тему

Права
      Ви не можете створювати нові теми
      Ви не можете відповідати на повідомлення
      HTML дозволений
      UBBCode дозволений

Рейтинг:
Переглядів теми: 4557

Оціните цю тему

Перейти в

Правила конференції | Календар | FAQ | Карта розділу | Мобільна версія